行家说Display
LED新型显示产业智库
关注公众号
4项Micro LED技术获新进展
行家说Talk · 2024-06-17
4项Micro LED技术获新进展
近期,Micro LED技术动态频发,国星半导体、瑞晟光电、康源半导体均公示了Micro LED相关专利。
01
国星半导体:披露两则Micro LED专利
国星半导体两项Micro LED专利有新进展,均处于授权阶段。
◪ “一种批量转移Micro LED芯片的方法和装置”:
包括:提供一带有通孔的基板;在基板的表面喷洒吸附液体;将Micro LED芯片放置在基板的表面;使通孔处于负压状态,将Micro LED芯片吸附在通孔上;除去通孔以外的Micro LED芯片和吸附液体;除去通孔内的吸附液体。
通过将基板上的通孔处于负压状态,同时利用吸附液体的表面张力,将随机、零散的Micro LED芯片吸附在通孔上,从而实现准确定位,大量零散的Micro LED芯片以通孔为定位点,实现整齐排列,不需要人工一颗一颗来进行转移,实现了大批量转移。相应的,还提供了一种用于批量转移Micro LED芯片的装置,结构简单,易于操作。
4项Micro LED技术获新进展
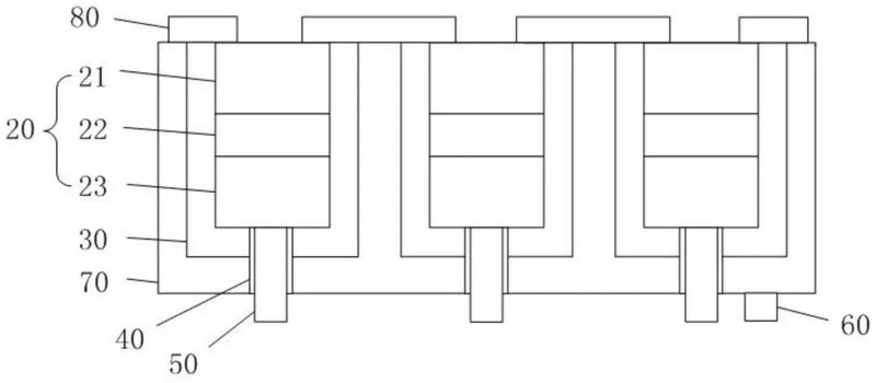
◪ “一种多合一Micro LED芯片及其制作方法”:
所述Micro LED芯片包括至少三个发光结构、第一绝缘层、第二绝缘层、第一电极、第二电极、金属连接层和连接电极,所述金属连接层设置在相邻两个发光结构之间,以将相邻的发光结构形成连接;所述连接电极设置发光结构的背面和金属连接层上,将发光结构与金属连接层形成导电连接。
本发明在发光结构之间形成金属连接层,将几个发光结构连接在一起,形成一个整体,有效减少转移的次数,提高生产效率。
4项Micro LED技术获新进展
4项Micro LED技术获新进展
02
瑞晟光电:一种MicroLED显示屏单元板连接装置
江西瑞晟光电科技有限公司“一种MicroLED显示屏单元板连接装置”的专利进入实质审查阶段。
本发明包括框架和单元板,框架上设置有锁紧机构和拼接机构,单元板通过锁紧机构与框架可拆卸安装,相邻四个单元板通过拼接机构固定连接在一起。
其利用锁紧机构将单元板与框架进行定位,然后利用拼接机构将与框架固定安装的四个单元板进行紧密拼接,可以在不使用工具的情况下完成单元板的拆装和单元板与框架之间的固定安装,操作简单,拆装快速,实用性强,改变传统的安装方式,能够在完成单元板与框架之间拆装的同时,将多个单元板之间紧密拼接。
不仅有效提高了单元板拼接的便捷性和拼接效率,且便于对单元板进行维修或更换,具有广阔的市场前景。
4项Micro LED技术获新进展
4项Micro LED技术获新进展
INSPIRE
THE BEST
03
康源半导体:一种MiniLED和MicroLED直显应用的全贴合结构
康源半导体“一种MiniLED和MicroLED直显应用的全贴合结构”的专利进入授权阶段。
该专利涉及Mini LED和Micro LED显示屏直接显示应用技术领域,解决了直显框胶贴合方式容易受环境污染影响使用,而且视觉体验较差,填补Mini LED和Micro LED直显屏带触摸屏功能领域市场空白状态的问题。
包括灯板;所述灯板的顶部固定设置有若干灯珠;所述灯板的顶部覆盖有一层表面保护胶膜;所述表面保护胶膜的顶部覆盖有一层透明液态光学胶OCR;所述透明液态光学胶OCR的顶部覆盖有两层具有触摸功能的ITO菲林膜;所述菲林膜的顶部覆盖有一块LENS盖板。
该基于直显屏的结构使用液态光学胶进行贴合,满足行业对相关类产品应用需求,填补Mini LED和Micro LED直显屏加触摸屏领域贴合应用的空白。
4项Micro LED技术获新进展
END
相关阅读:
LG推出 “下一代Micro LED”
苹果最新智能眼镜专利:双屏幕+LED阵列
喜欢此内容的人还喜欢 不喜欢
不喜欢
不喜欢
行家说Display 向上滑动看下一个
人划线
,选择留言身份
最新活动
往届回顾