行家说Display
LED新型显示产业智库
关注公众号
自然格调 | 巴西Mila品牌时装店
Mila商店的设计理念是将家的氛围带入商业环境中。我们努力使用可为空间带来舒适感的自然元素,通过使用情感记忆让客户感受到欢迎,提高购物体验。
自然格调 | 巴西Mila品牌时装店
自然格调 | 巴西Mila品牌时装店
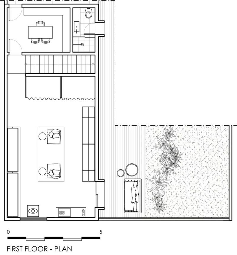
外立面覆盖着Palimanan砖,其中一个“L”形的玻璃店面通过创建两个不同的展示空间,一个沿着一楼,一个垂直于二楼。在主展柜上,木格板创造了光影效果,为房间带来了风景。
自然格调 | 巴西Mila品牌时装店
自然格调 | 巴西Mila品牌时装店
在室内,采用水泥的砖墙与木材和镜饰面形成对比。轻质衣架和架子由钢和木材制成,与中心的木桌形成对比。天花板上的长灯具与老式枝形吊灯相得益彰。此外,使用再生木材、格子板、提花坐垫、巴厘岛地毯和亚麻窗帘,强化了商店的特色和舒适感。
自然格调 | 巴西Mila品牌时装店
自然格调 | 巴西Mila品牌时装店
二楼有一个休闲和超大号时装区,还有一个花园,你可以在那里喝茶或吃早午餐。
在这个设计中,团队带来了色彩、纹理、装饰元素、自然和复古的材料,增强了感官方面的效果,让客户有机会在购买的瞬间获得情感体验。
自然格调 | 巴西Mila品牌时装店
自然格调 | 巴西Mila品牌时装店
自然格调 | 巴西Mila品牌时装店
自然格调 | 巴西Mila品牌时装店
自然格调 | 巴西Mila品牌时装店
自然格调 | 巴西Mila品牌时装店
工程名称:Mila Showroom
坐落地点:巴西
面积: 150 ㎡
设计单位:David Guerra Arquitetura e Interiores设计团队:Nínive Resende, Jefferson Gurgel, Bernardo Hauck, Letícia Thibau
竣工时间:2018
摄影:Jomar Bragança
本月新刊
自然格调 | 巴西Mila品牌时装店
2019.07期
餐厅设计专辑
点击封面
了解详情
本期专辑的主题是餐厅设计,这里齐聚了来自不同国家和地区的设计作品,充满艺术感的空间和多元化的设计手法令人难忘。
最新活动
往届回顾