行家说Display
LED新型显示产业智库
关注公众号
柔性的力量 | Minu韩国女装买手店
该项目是minu在泛海城市广场的新店,
IF.A和Minu也是老搭档了,
每次画图或头脑风暴完毕刷一刷minu官宣,
韩国小姐姐潇洒自由的生活就跃然于眼前,
踩着阳光逛美术馆的,慵懒倚在咖啡厅的,手扎花束的旁边还伴着书香……
真丝长裙的顺滑,亚麻布料的衣襟弧度,姜黄色的袜子边和纤长脖子上的同色丝巾,
都像是从异国刮来的缭绕的不息的风,美好的自由的独立的,简直让人抓狂。
柔性的力量 | Minu韩国女装买手店
柔性的力量 | Minu韩国女装买手店
所以,我们在讨论一件衣服时,到底是在讨论些什么?
讨论袖口针脚的密实度?讨论植物染色的工艺?讨论颜色搭配的不二法则?
还是讨论这件衣服这身搭配对于当下这一刻/这一天的意义?
出差时洗练的白色衬衫,
郊游时身着杏色开衫焦糖色长裙,
工作状态下外搭一件灰色西装……
我们切换不同的场景,生活在丰富的多层次的当下,
用不同的服装来烘托,来铭记这一刻/这一天/这一年……
我们讨论一件衣服,
好像讨论一杯咖啡对于一段对话的意义 ,
一首歌对于一段路途的意义 ,
一首诗对于一段睡前时光的意义一样
柔性的力量 | Minu韩国女装买手店
柔性的力量 | Minu韩国女装买手店
柔性的力量 | Minu韩国女装买手店
而我们在讨论一个空间时,又是在讨论些什么?
小时候妈妈领着我在小摊贩货架上挑衣服,
稍微大一点去超市或卖场 ,
再大一点可以进到商场开始对服装有品牌意识,
我在不同的空间场景内挑选并曾努力尝试不同风格的服装,
直到现在,钟情于固定品牌和一些独立服装买手店。
我会充分体验空间,是如何承载服装及美学理念。
并更多去思考关于自我的问题,
到底是酷酷的我,还是温柔的我;
是如沐春风清新自然的我,还是乖张独立桀骜又不羁的我;
各种各样的“我”在做完各种选择的同时逐步定下型来,
直到终于确定,我真的只是需要这样的“我”
柔性的力量 | Minu韩国女装买手店
柔性的力量 | Minu韩国女装买手店
好像Minu这次的新店空间,
我们通过空间来放大了品牌的感知力,
具备让人一眼便知的 。
柔性的力量 | Minu韩国女装买手店
柔性的力量 | Minu韩国女装买手店
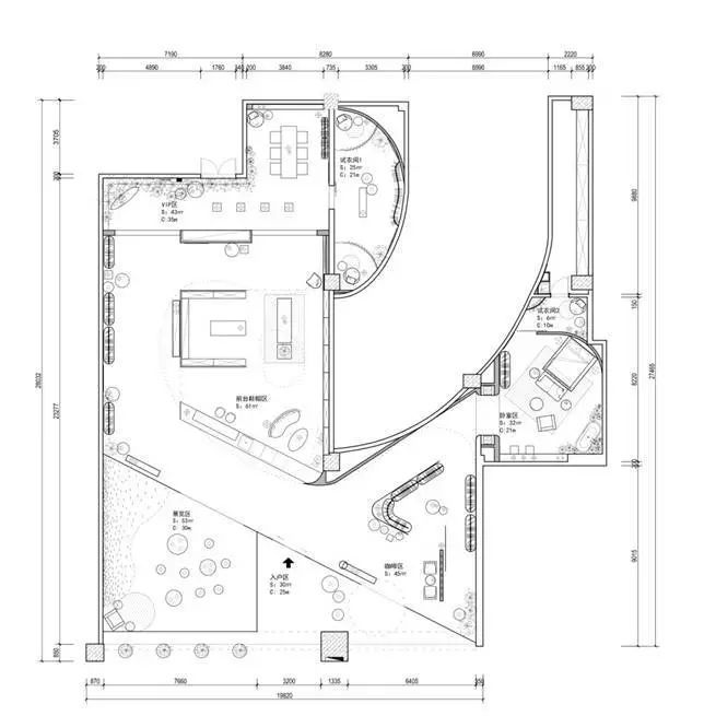
我们用Minu小姐姐游园的动线来分割不同的场景,
并引入展览的方式来陈列服装模特,背景仿若丝带和织物。
用以凸显服装雕塑般的气度和匹配场景的仪式感。
柔性的力量 | Minu韩国女装买手店
柔性的力量 | Minu韩国女装买手店
在温和的卵形空间内,一切以最为纯粹的素色为打底,
凸显最为核心的产品----服装的别致和搭配美学。
红色作为主题色,
红色可以是热切的,也可以是温情的,
美好的空间甚至带来味觉上的延伸,
温情的红色甚至让空间变成了甜的……
顾客可以尽情地游历在空间内,
每个空间都蕴藏着一些更为丰富的层次。
柔性的力量 | Minu韩国女装买手店
柔性的力量 | Minu韩国女装买手店
Minu落地之后在泛海商圈内成了一个最特别的存在,
好像那颗温柔耀眼的红色的球,
好像从异国刮来的缭绕的不息的风,
来往行人都会好奇走进店来一探究竟。
柔性的力量 | Minu韩国女装买手店
柔性的力量 | Minu韩国女装买手店
工程名称:Minu韩国女装买手店
坐落地点:湖北 武汉
面积: 600㎡
室内设计:邹浩 张静
深化执行:阮航 彭志远
软装设计:张静 洪雅娟 蒙韩师
设计时间:2018.07
竣工时间:2018.11
主要材料:艺术涂料 钢化玻璃
摄影:摩方视觉
本月新刊
柔性的力量 | Minu韩国女装买手店
2019.06期
最新活动
往届回顾