行家说Display
LED新型显示产业智库
关注公众号
他们将层高只有2.2米的餐厅打造出最诗意的日式风
编辑手记:
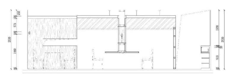
深圳青缇汇·日料定食是一个整改项目,在层高只有2米2,地面、设备、厨房都维持现状的条件下,设计师删繁就简,精心规划了动线,将原本狭长的空间合理划分成不同的功能区。通过材质的对比以及对光线明暗的准确控制,营造了让人沉静放松的用餐氛围。
他们将层高只有2.2米的餐厅打造出最诗意的日式风
他们将层高只有2.2米的餐厅打造出最诗意的日式风
灰石矮墙的序幕拉开,布置着景深幽邃的客座群落;环顾四周,温暖的木质基调搭配带有肌理的白墙,再加上灯光的氛围渲染,低调而又沉静。悬空的半面白墙与木桌穿插,通透中又隐约带出其后的层层景致,完成多层次的婉转划分,含蓄而又清晰。
他们将层高只有2.2米的餐厅打造出最诗意的日式风
他们将层高只有2.2米的餐厅打造出最诗意的日式风
他们将层高只有2.2米的餐厅打造出最诗意的日式风
他们将层高只有2.2米的餐厅打造出最诗意的日式风
他们将层高只有2.2米的餐厅打造出最诗意的日式风
他们将层高只有2.2米的餐厅打造出最诗意的日式风
他们将层高只有2.2米的餐厅打造出最诗意的日式风
他们将层高只有2.2米的餐厅打造出最诗意的日式风
结合各个层次的高低错落、小景绿植、灯光明暗的把控,设计师让空间能由外向内的逐次展演。景中有景的起承转合,委婉阐述了“内敛”的界线概念。
他们将层高只有2.2米的餐厅打造出最诗意的日式风
他们将层高只有2.2米的餐厅打造出最诗意的日式风
他们将层高只有2.2米的餐厅打造出最诗意的日式风
他们将层高只有2.2米的餐厅打造出最诗意的日式风
他们将层高只有2.2米的餐厅打造出最诗意的日式风
他们将层高只有2.2米的餐厅打造出最诗意的日式风
他们将层高只有2.2米的餐厅打造出最诗意的日式风
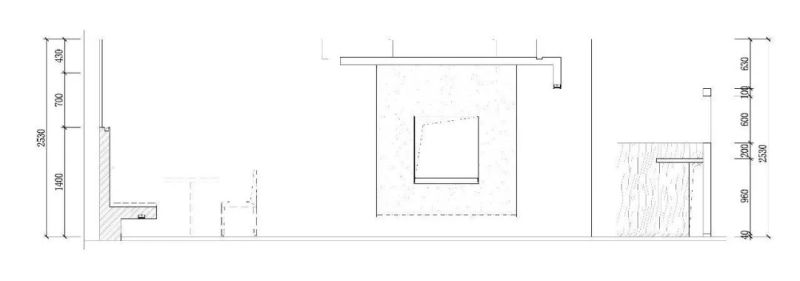
灯光与形体的结合,空间与空间之间的渗透,小景观的处处营造,让人在同一端景中感受到不同的画面,缓解了层高带来的压迫感,也无形中让区域之间互相呼应。
他们将层高只有2.2米的餐厅打造出最诗意的日式风
他们将层高只有2.2米的餐厅打造出最诗意的日式风
他们将层高只有2.2米的餐厅打造出最诗意的日式风
他们将层高只有2.2米的餐厅打造出最诗意的日式风
另一扇灰石矮屏之后,半隐蔽了外部区域,也营造了内在一个诗意的空间。暗调的光阴和景致在片片镜面中起承转合,宛若一处秘境。
他们将层高只有2.2米的餐厅打造出最诗意的日式风
他们将层高只有2.2米的餐厅打造出最诗意的日式风
他们将层高只有2.2米的餐厅打造出最诗意的日式风
他们将层高只有2.2米的餐厅打造出最诗意的日式风
他们将层高只有2.2米的餐厅打造出最诗意的日式风
他们将层高只有2.2米的餐厅打造出最诗意的日式风
他们将层高只有2.2米的餐厅打造出最诗意的日式风
从后景的镜面栅格、中景的悬空隔断,到前端的灰石白屏,若明若暗的灯光渲染下,空间的体验在有限的条件中得到极致的提升。环环相扣,步步皆景,大大提升了“食”的趣味与深度。
他们将层高只有2.2米的餐厅打造出最诗意的日式风
他们将层高只有2.2米的餐厅打造出最诗意的日式风
他们将层高只有2.2米的餐厅打造出最诗意的日式风
2 0 1 9 年
项目名称:青缇汇 日料定食
项目地点:深圳市软件产业基地
项目面积:200㎡
完工时间:2018年4月
设计公司:埂上设计事务所
主创设计:李良超,文志刚,黄元满
专案设计:向维方
软装规划:禾和设计
摄影团队:黄缅贵
作者|埂上设计事务所
内容来源| 埂上设计事务所
如需转载,请自行联系原出处
投稿/合作|media@elicht.cn
*本文仅代表作者独立观点,不代表云知光照明微课堂立场。
相关标签
最新活动
往届回顾