行家说Display
LED新型显示产业智库
关注公众号
新品推荐—UV LED均匀准直面光源曝光光刻方案(二)
LED资讯 · 2018-12-20
上期推出的UV LED均匀准直面光源曝光光刻方案,很多小伙伴非常感兴趣,联系咨询更多关于UV LED曝光机的详情。应大家的要求本期再聊聊 恒坤光电|HercuLux Optics UV LED均匀准直面光源曝光光刻方案方面的话题。
新品推荐—UV LED均匀准直面光源曝光光刻方案(二)
结构图示
UV LED均匀准直面光源曝光光刻设备的结构包括LED光源、光线收集透镜、复眼积分透镜组、场镜、准直透镜及曝光平面等。
新品推荐—UV LED均匀准直面光源曝光光刻方案(二)
下面看看规格型号为4英寸、6英寸、8英寸UV LED均匀准直面光源曝光光刻设备对应的技术指标、工作距离及曝光图形实例。
规格型号及技术指标
新品推荐—UV LED均匀准直面光源曝光光刻方案(二)
曝光图形实例
线宽:2μ
深宽比:大于 2:1
陡直度:大于80°
新品推荐—UV LED均匀准直面光源曝光光刻方案(二)
最小线宽:1μ
套刻次数:3
新品推荐—UV LED均匀准直面光源曝光光刻方案(二)
工作距离
新品推荐—UV LED均匀准直面光源曝光光刻方案(二)
新品推荐—UV LED均匀准直面光源曝光光刻方案(二)
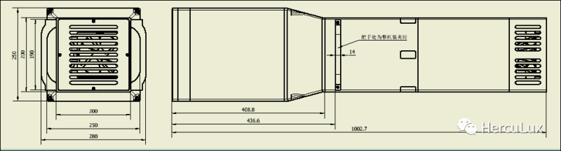
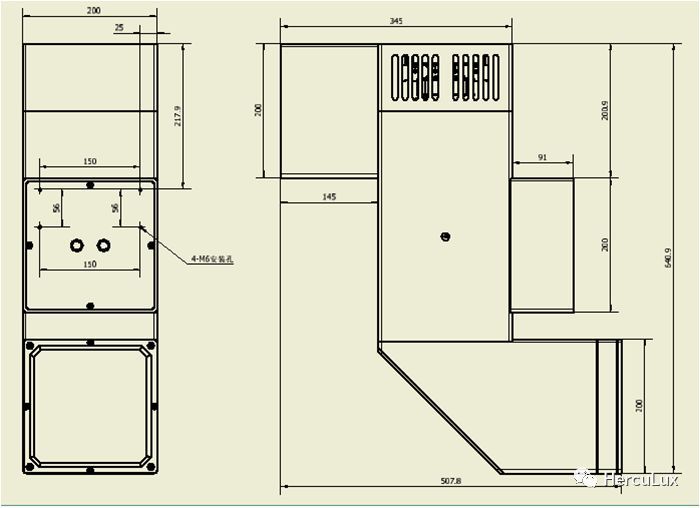
UV LED曝光机节能环保,替代传统UV汞灯曝光机已成必然趋势。恒坤光电|HercuLux Optics现在已经投产、可批量交货的4英寸、6英寸、8英寸UV LED曝光机相比传统UV汞灯曝光机体积大大缩小,可以实现轻松替换。对应的外观图和安装尺寸图如下。
4寸外观图
新品推荐—UV LED均匀准直面光源曝光光刻方案(二)
4寸安装尺寸
新品推荐—UV LED均匀准直面光源曝光光刻方案(二)
6寸外观图
新品推荐—UV LED均匀准直面光源曝光光刻方案(二)
6寸安装尺寸
新品推荐—UV LED均匀准直面光源曝光光刻方案(二)
8寸外观图
新品推荐—UV LED均匀准直面光源曝光光刻方案(二)
8寸安装尺寸
新品推荐—UV LED均匀准直面光源曝光光刻方案(二)
相关标签
最新活动
往届回顾