行家说Display
LED新型显示产业智库
关注公众号
一次穿越时间的旅行 | 意大利Gloriette酒店
由noa *建筑事务所设计的Gloriette酒店坐落在意大利博尔扎诺自治省一个名为雷农的小镇,酒店的前身原为一栋由当地富商出资建造的旅舍,作为整个村庄的标志性建筑,华丽的外观使其从周围乡村式的建筑群中脱颖而出。而新建的Gloriette酒店延续的之前建筑的功能,代替他成为自然景观中一颗崭新的宝石。
一次穿越时间的旅行 | 意大利Gloriette酒店
建筑将城市和乡村美景融为一体
新酒店的设计灵感来源于永恒而优雅的新艺术(Art Nouveau)建筑风格,它以简约的设计形式传递着一种朴实无华的时代特征,素雅古朴的设计语言重新定义了奢华与舒适的含义——恢宏而经典,简单却不暗淡。
一次穿越时间的旅行 | 意大利Gloriette酒店
酒店外观
一次穿越时间的旅行 | 意大利Gloriette酒店
立面细部
传统的拱形元素
建筑师认为将当地流行元素融入建筑至关重要,比如立面上的拱门和倾斜的屋顶。这两种元素可以追溯到Oberbozen村庄悠久的建筑传统。与此同时,设计中还运用了一种菱形的装饰元素,这种元素一般都是出现在Ritten铁路(一条四通八达,贯通许多目的地的线路)沿线的许多建筑之中。整个酒店的设计思路十分清晰:由大量的细节共同构成一个统一而完整的项目。酒店的特色之一在于与地形完美呼应的布局:车库设置在建筑的最底层,地下二层设置有25间客房,停车场区域一直延伸到7个花园套房所在的地面层。从宽阔的酒店花园望向酒店,可以看到接待处、大堂和餐厅等公共区域。餐厅二层的露台可以俯瞰花园和远处的美景。立面的设计将室内的活动以一种独特的方式展现出来,同时又不至于泄露得太多以造成隐私上的不便。
一次穿越时间的旅行 | 意大利Gloriette酒店
立面上的拱门元素使人想起Oberbozen村庄的悠久历史
一次穿越时间的旅行 | 意大利Gloriette酒店
夜景
酒店公共空间上方的三层空间内还设有若干客房,其中套房分散设置在建筑的各个边缘处,通过其凸出墙壁外侧的方形飘窗就能轻松辨别出来,为整座酒店增添了几分大胆的感觉。从一层开始,立面上的拱形元素向上逐层叠加,在尺度上形成一种跳跃的感觉,最终在上面的楼层中形成一个简洁的单轴拱形立面。无框的窗户被设置在客房的凉廊区域,使室内和室外空间形成交汇。黑色的玻璃墙将酒店周围的景观反射出来,同时也被用作每个客房阳台之间的隔断,从视觉上增加了拱形结构的丰富感。
一次穿越时间的旅行 | 意大利Gloriette酒店
立面上的方盒子飘窗表明了套房所在的位置
一次穿越时间的旅行 | 意大利Gloriette酒店
一次穿越时间的旅行 | 意大利Gloriette酒店
飘窗细部
酒店的顶部坐落着水疗中心,内部设置了各式休闲养生设施,带有斜脊的屋顶使其成为一个独立的存在。客人们可以在宽敞的休息区、飘窗顶端或嵌入屋顶内部的露台上小憩。
一次穿越时间的旅行 | 意大利Gloriette酒店
在顶层,拱形元素变成了一个冲破屋顶、向外延伸的青铜色独立结构
室内的风格演绎
新艺术风格的永恒性以抽象的形式在室内空间中体现出来。简练的细节反复出现,贯穿了建筑的始终。例如客房内底部为弧形的镜子、休息室内的壁炉以及spa露台的躺椅靠背等。酒店内的家具大都摆放得十分随意,优雅而简约的布面材料更突显了舒适的氛围。酒店内的摆设和工艺品均是从跳蚤市场或原来的旅舍中收集而来,包括从天花板上悬挂下来的金色灯具。
一次穿越时间的旅行 | 意大利Gloriette酒店
地面上的“岛屿”以实木地板铺设,定义出休息室的不同区域
一次穿越时间的旅行 | 意大利Gloriette酒店
前台区域
一次穿越时间的旅行 | 意大利Gloriette酒店
大堂公共区域
套房的飘窗设计是整个建筑的亮点之一,它为整个房间提供了休息区域会用到的壁炉、独立浴缸和景观沙发。房间内的墙壁、地板和天花板均覆盖以相同材料的饰面,通过天然的木料营造出舒适宜人的室内氛围。这种材质非但不土,反而透着淡淡的高贵,它是一种内敛的质朴并散发出浅浅的温馨。
一次穿越时间的旅行 | 意大利Gloriette酒店
Lorenzi套房
一次穿越时间的旅行 | 意大利Gloriette酒店
一次穿越时间的旅行 | 意大利Gloriette酒店
飘窗内的沙发观景座位
一次穿越时间的旅行 | 意大利Gloriette酒店
拱形主题在室内得到了沿用
一次穿越时间的旅行 | 意大利Gloriette酒店
天然的木料营造出质朴、舒适而温馨的室内氛围
一次穿越时间的旅行 | 意大利Gloriette酒店
室内细部
超凡的空间体验
悬臂式游泳池无疑是整个酒店最为显眼的一处存在。引人注目的半圆筒状结构从建筑的南立面“钻入”屋顶,再从北立面“伸出”,形成一个独具特色的游泳池。游泳池的一端是封闭的围合结构,其饰面材料采用了与方盒子飘窗相同的青铜色铝板,接近6 m的深度、弧形的轮廓、透明度与柔和的光线反射感共同营造出一种具有雕塑感的空间体验。
一次穿越时间的旅行 | 意大利Gloriette酒店
水疗中心,壳形的自动门空间
一次穿越时间的旅行 | 意大利Gloriette酒店
休息区
一次穿越时间的旅行 | 意大利Gloriette酒店
一次穿越时间的旅行 | 意大利Gloriette酒店
桑拿区
游泳池的入口处被青铜色的弧形外壳围绕,而随着深入泳池,外壳逐渐逐渐过渡到由圆杆构成的网状结构,直至最终到达露天区域,金属元素和水的互动营造出一种无边无际的自由感觉。这是一种渐隐的方式,将这种圆柱形的外壳慢慢消解掉,使人犹如在景观中漂浮。这处空间应该是整段旅程的高潮所在,人们甚至在进入酒店之前就已经想象过这里会是怎样一番光景。
一次穿越时间的旅行 | 意大利Gloriette酒店
游泳池入口
一次穿越时间的旅行 | 意大利Gloriette酒店
游泳池的入口处被青铜色的弧形外壳围绕
一次穿越时间的旅行 | 意大利Gloriette酒店
弧形外壳逐渐消解为杆状结构成的织网,直至最终完全消失
一次穿越时间的旅行 | 意大利Gloriette酒店
一次穿越时间的旅行 | 意大利Gloriette酒店
泳池外观
一次穿越时间的旅行 | 意大利Gloriette酒店
杆状结构细部
一次穿越时间的旅行 | 意大利Gloriette酒店
整体外观
项目图纸
一次穿越时间的旅行 | 意大利Gloriette酒店
场地平面图
一次穿越时间的旅行 | 意大利Gloriette酒店
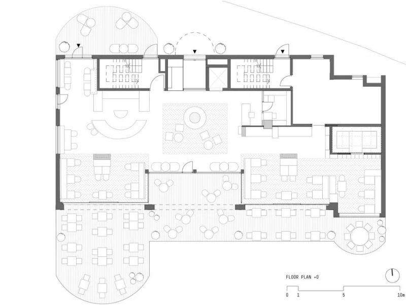
首层平面图
一次穿越时间的旅行 | 意大利Gloriette酒店
二层平面图
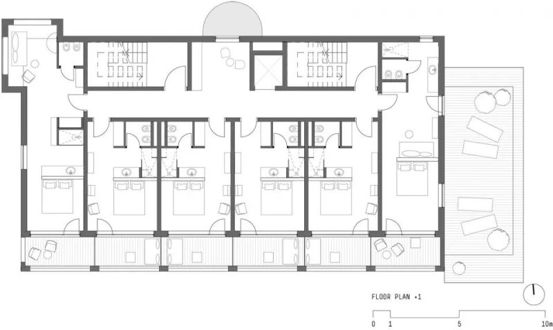
一次穿越时间的旅行 | 意大利Gloriette酒店
五层平面图
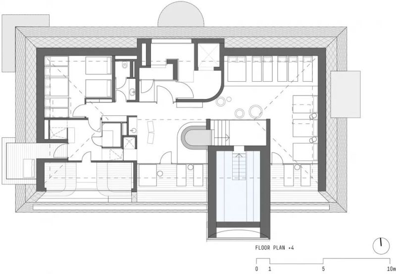
一次穿越时间的旅行 | 意大利Gloriette酒店
六层平面图
一次穿越时间的旅行 | 意大利Gloriette酒店
南立面图
一次穿越时间的旅行 | 意大利Gloriette酒店
剖面图
工程名称:意大利Gloriette酒店
坐落地点:意大利 雷农
面积:2000㎡
设计单位:noa*
竣工时间:2018.07
摄影:Alex Filz
最新活动
往届回顾