行家说Display
LED新型显示产业智库
关注公众号
2018全球最值得期待的建筑之一 - 卡尔加里中央图书馆,加拿大 / Snøhetta
来自 Snøhetta 对gooood的分享
2018年11月1日,Snøhetta事务所和DIALOG事务所联手设计的新中央图书馆正式向公众开放。图书馆的扩建部分面积达到24万平方英尺,希望每年来访的游客量能增加一倍,未来图书馆将在这座快速发展的城市起到非常重要的作用。
中央图书馆是卡尔加里市自1988年奥运会以来的规模最大的公共投资项目,这个以知识文化的创新为重心的建筑,标志着城市生活新篇章的开始。卡尔加里市公共图书馆是北美最大的图书馆之一,超过一半的市民持有图书馆的借阅卡。
新扩建的部分设计灵感就是源于这些市民。扩建的大楼为各类人群和各种活动提供了空间——比如用于社交互动和沟通的空间,用于学习研究的空间,以及用于静思和自省的空间。
2018全球最值得期待的建筑之一 - 卡尔加里中央图书馆,加拿大 / Snøhetta
图书馆外观
建筑处在非常复杂的城市环境中,一条全线运营的轻轨交通线沿着半月形的弯路从地上至地下横穿基地,将市中心和东村隔开。为了回应基地环境,建筑师将图书馆的主入口设在了轻轨线旁边。阶梯从各处缓缓向图书馆中心延伸,所以人们在各个方向都能与图书馆产生互动。
露台上的户外圆形剧场为从图书馆出来的人们提供了小坐之地。景观设计参考了当地的景观特色,将卡尔加里的山脉和草原引入城市景观,还在图书馆广场周边的街道上种上了排排榆树和白杨。入口广场既是入口,也起到了桥梁的作用,重建了基地的视觉联系,和行人系统。
2018全球最值得期待的建筑之一 - 卡尔加里中央图书馆,加拿大 / Snøhetta
图书馆在街区的交会处成为一座灯塔
颇具动感的三层玻璃幕墙由模块化的六边形图案组成,象征着图书馆对所有人的欢迎。这些六边形图案在图书馆外部曲面的熔块玻璃和闪光铝板上交替分布。部分图案看起来像一本打开的书,又或者像是雪花,也可能是两栋相连的房屋。
2018全球最值得期待的建筑之一 - 卡尔加里中央图书馆,加拿大 / Snøhetta
三层玻璃幕墙由模块化的六边形图案组成
最重要的是,整座图书馆的立面形式非常均匀,所以任何一个立面都可以被看做是正面。这种“均匀”的视觉效果在图书馆内部也得以延续,体现在图书馆的视觉识别和道路标识的设计中,实现了图书馆设计时的包容性的目标。
2018全球最值得期待的建筑之一 - 卡尔加里中央图书馆,加拿大 / Snøhetta
立面内部视角
底层的外立面并未使用透明的六边形,而是设计成了凹进去的宽阔木质拱顶,人们在进入图书馆的时候会产生被环抱的感觉。
图书馆入口处结构参考了当地常见的Chinook云拱。入口处的双曲面木质拱廊是世界上最大的自由曲面木质外壳之一,材质选用了不列颠哥伦比亚省西部产的红杉木。其有机形态和质感让大型建筑的尺度变得亲密。从图书馆外面就能看到中庭,仿佛在邀请人们进入。
2018全球最值得期待的建筑之一 - 卡尔加里中央图书馆,加拿大 / Snøhetta
木质拱顶带来环抱的感觉
木质格栅沿着开放式中庭的边缘排列,从平面上看像是一个尖尖的椭圆,这样布置可以让人们能很快就明白图书馆的组织流线。
图书馆内部使用的混凝土是外露的,且不加任何修饰,隐喻着室内空间的自由性。梁和柱的排列方式让人联想到古希腊建筑中用来聚会和知识交流的拱廊。保留材料的原始性,就是为了让人们感觉到这个图书馆是一个大家能够参与进来的地方,而不是一个神圣的藏书阁。
2018全球最值得期待的建筑之一 - 卡尔加里中央图书馆,加拿大 / Snøhetta
从三层望向中庭
沿着拱门继续走就走到了大厅和中庭,木质楼梯蜿蜒而上,最高处距离地面有85英尺,通过巨大的“天眼”可以看到天空的景象。
2018全球最值得期待的建筑之一 - 卡尔加里中央图书馆,加拿大 / Snøhetta
木质楼梯蜿蜒而上,通过巨大的“天眼”可以看到天空的景象
图书馆的平面布局由“趣”到“肃”,即在低楼层布置较为活跃的公共活动区,由下至上逐渐过渡到高楼层的较安静的学习区。在地面层,建筑周边设有一系列的多功能空间,增强了建筑内外空间的连通性。
地面层的儿童图书馆还有游戏屋,为孩子们的手工,绘画,早期识字和室内游戏体验提供了空间。
2018全球最值得期待的建筑之一 - 卡尔加里中央图书馆,加拿大 / Snøhetta
位于夹层的儿童游戏区
图书馆共有六层,分布着各种空间,比如数字空间,模拟空间,群体空间以及个人互动空间。
2018全球最值得期待的建筑之一 - 卡尔加里中央图书馆,加拿大 / Snøhetta
图书馆顶层是大阅览室,建筑师在设计时,把它构想成藏在图书馆的珠宝盒,人们可以在这儿潜心研究,寻找灵感。进入大阅览室之前要先经过一个过渡空间,过渡空间光线柔和,声效优良。
2018全球最值得期待的建筑之一 - 卡尔加里中央图书馆,加拿大 / Snøhetta
大阅览室
室内利用木质格栅而非实体墙壁来环绕空间,这样既保证了隐私,又有一定的可见度。阳光透过木条的缝隙照亮了中庭和西立面之间的空间。
2018全球最值得期待的建筑之一 - 卡尔加里中央图书馆,加拿大 / Snøhetta
2018全球最值得期待的建筑之一 - 卡尔加里中央图书馆,加拿大 / Snøhetta
木质格栅保证了室内隐私,又有一定的可见度
2018全球最值得期待的建筑之一 - 卡尔加里中央图书馆,加拿大 / Snøhetta
阶梯阅读区
走到图书馆的最北边,你会发现自己仿佛身处于客厅,在这儿能俯瞰轻轨铁路以及两个街区的交汇处。
2018全球最值得期待的建筑之一 - 卡尔加里中央图书馆,加拿大 / Snøhetta
2018全球最值得期待的建筑之一 - 卡尔加里中央图书馆,加拿大 / Snøhetta
独特的六边形几何立面平衡了透明和不透明窗板的分布,能够对室内所需的日光水平起到控制作用
图书馆的延伸部分造型宛如船首,这里光线萦绕,活动丰富,对外面的人来说,好似一座灯塔,吸引着人们来此,也意味着一种可能,希望这栋建筑能带来积极的影响,重振卡尔加里的文化,学习和社区精神。
2018全球最值得期待的建筑之一 - 卡尔加里中央图书馆,加拿大 / Snøhetta
阅读区
项目图纸
2018全球最值得期待的建筑之一 - 卡尔加里中央图书馆,加拿大 / Snøhetta
场地平面图
2018全球最值得期待的建筑之一 - 卡尔加里中央图书馆,加拿大 / Snøhetta
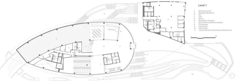
首层平面图
2018全球最值得期待的建筑之一 - 卡尔加里中央图书馆,加拿大 / Snøhetta
二层平面图
2018全球最值得期待的建筑之一 - 卡尔加里中央图书馆,加拿大 / Snøhetta
五层平面图
2018全球最值得期待的建筑之一 - 卡尔加里中央图书馆,加拿大 / Snøhetta
2018全球最值得期待的建筑之一 - 卡尔加里中央图书馆,加拿大 / Snøhetta
2018全球最值得期待的建筑之一 - 卡尔加里中央图书馆,加拿大 / Snøhetta
剖面图
Team CreditsDesign Architect, Landscape Architect, Interior Architecture, FF&E, Millwork, Signage & Wayfinding: SnøhettaExecutive Architect & Executive Landscape Architect: DIALOGClient: Calgary Municipal Land Corporation (CMLC)Location: Calgary, Alberta, CanadaStatus: Completed 2018Size: 240,000 sqft (2/3 larger than the original library)Budget: $245 million CAD (total project cost), $147 million CAD (hard cost)Structural: EntuitiveMechanical: DIALOGElectrical & Lighting: SMP Engineering IT/AV: McSquared System Design Group, Inc. Contractor: Stuart Olson
最新活动
往届回顾