行家说Display
LED新型显示产业智库
关注公众号
新作 | 福州海峡文化艺术中心开幕!福州市闽江河畔新地标 / PES-Architects
感谢 PES-Architects 对gooood的分享
以赫尔辛基和上海作为实践根据地的PES-Architects事务所近期完成了他们在中国的第七个项目:福州海峡文化艺术中心。福州是福建的首府和最大城市之一,并且是全世界发展最快的都市之一。2013年,福州市政府举办了海峡文化艺术中心的国际设计邀请赛,旨在加强福州市的文化形象并促进马尾新城的发展。
新作 | 福州海峡文化艺术中心开幕!福州市闽江河畔新地标 / PES-Architects
新作 | 福州海峡文化艺术中心开幕!福州市闽江河畔新地标 / PES-Architects
鸟瞰图 ©Marc Goodwin
PES-Architects的设计灵感来源于福州市花茉莉花,建筑的形式和颜色均模仿了茉莉花盛开的样子,5个“花瓣”分别对应着5个场馆:歌剧院(1600个座位)、音乐厅(1000个座位)、多功能剧场、艺术展厅以及电影中心。这5个场馆通过文化广场和一座宽阔的屋顶露台形成连接。屋顶露台可以从茉莉花园的两个坡道进入,也可直接从茉莉中央广场进入,使建筑群和闽江河畔形成无缝的衔接。在地下一层,沿着梁厝河伸展的河滨长廊将景观和室内空间融为一体,同时将地铁站和文化艺术中心连接起来。
新作 | 福州海峡文化艺术中心开幕!福州市闽江河畔新地标 / PES-Architects
建筑的形式和颜色均模仿了茉莉花盛开的样子 ©ZhangYong
新作 | 福州海峡文化艺术中心开幕!福州市闽江河畔新地标 / PES-Architects
建筑群和闽江河畔形成无缝的衔接 ©ZhangYong
新作 | 福州海峡文化艺术中心开幕!福州市闽江河畔新地标 / PES-Architects
花园视角 ©Marc Goodwin
PES-Architects事务所的创始人Pekka Salminen表示:“将庞大的综合体分割为几个较小的单元,能够为文化艺术中心赋予更加人性化的尺度,来访者也能够更加自如地在室内和室外空间转换。每栋建筑都拥有一个核心区域——沿着主立面伸展的半公共弧形走廊,它将公共室内空间与茉莉花园的景观融合为一个整体,并进一步将文化艺术中心连接至前方的马杭洲岛自然保护区。”
新作 | 福州海峡文化艺术中心开幕!福州市闽江河畔新地标 / PES-Architects
核心区域:沿着主立面伸展的半公共弧形走廊 ©Marc Goodwin
陶瓷
建筑以陶瓷作为主要材料,强调了中国与世界其他地区之间进行的海上丝绸之路贸易的历史背景。PES-Architects事务所与台湾的陶瓷艺术家施宣宇(Samuel Hsuan-yu Shih)共同为两座主要的礼堂设计了充满艺术感的室内空间,并凭声名远扬的传统“白瓷”和新型技术营造了优越的声学环境。建筑的立面均覆盖以白色的瓷砖和百叶窗,歌剧院和音乐厅的声学墙面更进一步体现了材料的文化和创新属性。
新作 | 福州海峡文化艺术中心开幕!福州市闽江河畔新地标 / PES-Architects
建筑外观 ©ZhangYong
新作 | 福州海峡文化艺术中心开幕!福州市闽江河畔新地标 / PES-Architects
建筑以陶瓷作为主要材料 ©ZhangYong
新作 | 福州海峡文化艺术中心开幕!福州市闽江河畔新地标 / PES-Architects
新作 | 福州海峡文化艺术中心开幕!福州市闽江河畔新地标 / PES-Architects
立面覆盖以白色的瓷砖和百叶窗 ©Marc Goodwin
新作 | 福州海峡文化艺术中心开幕!福州市闽江河畔新地标 / PES-Architects
立面细部 ©ZhangYong
新作 | 福州海峡文化艺术中心开幕!福州市闽江河畔新地标 / PES-Architects
百叶窗格 ©Marc Goodwin
新作 | 福州海峡文化艺术中心开幕!福州市闽江河畔新地标 / PES-Architects
旋转坡道 ©ZhangYong
新作 | 福州海峡文化艺术中心开幕!福州市闽江河畔新地标 / PES-Architects
坡道夜景 ©Marc Goodwin
新作 | 福州海峡文化艺术中心开幕!福州市闽江河畔新地标 / PES-Architects
新作 | 福州海峡文化艺术中心开幕!福州市闽江河畔新地标 / PES-Architects
集合大厅 ©Marc Goodwin
新作 | 福州海峡文化艺术中心开幕!福州市闽江河畔新地标 / PES-Architects
歌剧院入口处的弧形走廊 ©Marc Goodwin
新作 | 福州海峡文化艺术中心开幕!福州市闽江河畔新地标 / PES-Architects
交通空间细部 ©ZhangYong
新作 | 福州海峡文化艺术中心开幕!福州市闽江河畔新地标 / PES-Architects
©Marc Goodwin
新作 | 福州海峡文化艺术中心开幕!福州市闽江河畔新地标 / PES-Architects
前厅楼梯 ©ZhangYong
新作 | 福州海峡文化艺术中心开幕!福州市闽江河畔新地标 / PES-Architects
前厅的天井 ©Marc Goodwin
新作 | 福州海峡文化艺术中心开幕!福州市闽江河畔新地标 / PES-Architects
前厅吊顶 ©Marc Goodwin
新作 | 福州海峡文化艺术中心开幕!福州市闽江河畔新地标 / PES-Architects
细部 ©Marc Goodwin
歌剧院和音乐厅的室内墙面均覆盖以陶瓷面板。在与声学家进行广泛研究之后,设计团队开发出了两种类型的声学面板:“雕刻面板”和“马赛克瓷砖面板”。二者均能够很好地满足高质量的声学需求,从设计上看也十分美观。
新作 | 福州海峡文化艺术中心开幕!福州市闽江河畔新地标 / PES-Architects
歌剧院内部 ©Marc Goodwin
新作 | 福州海峡文化艺术中心开幕!福州市闽江河畔新地标 / PES-Architects
新作 | 福州海峡文化艺术中心开幕!福州市闽江河畔新地标 / PES-Architects
观众区能够容纳1600个座位 ©Marc Goodwin
新作 | 福州海峡文化艺术中心开幕!福州市闽江河畔新地标 / PES-Architects
新作 | 福州海峡文化艺术中心开幕!福州市闽江河畔新地标 / PES-Architects
定制的马赛克瓷砖面板能够很好地满足高质量的声学需求 ©Marc Goodwin
新作 | 福州海峡文化艺术中心开幕!福州市闽江河畔新地标 / PES-Architects
新作 | 福州海峡文化艺术中心开幕!福州市闽江河畔新地标 / PES-Architects
室内细部 ©Marc Goodwin
新作 | 福州海峡文化艺术中心开幕!福州市闽江河畔新地标 / PES-Architects
音乐厅 ©Marc Goodwin
新作 | 福州海峡文化艺术中心开幕!福州市闽江河畔新地标 / PES-Architects
新作 | 福州海峡文化艺术中心开幕!福州市闽江河畔新地标 / PES-Architects
声名远扬的传统“白瓷”和新型技术营造了优越的声学环境 ©Marc Goodwin
新作 | 福州海峡文化艺术中心开幕!福州市闽江河畔新地标 / PES-Architects
“雕刻面板” ©Marc Goodwin
竹子
多功能厅能够容纳700名观众。墙壁采用数控切割的坚固竹板作为饰面,其形态能够适应声学上的需求。屋顶处装配以灵活的线网式天花板,便于灵活地固定灯具和其他技术设备。
新作 | 福州海峡文化艺术中心开幕!福州市闽江河畔新地标 / PES-Architects
新作 | 福州海峡文化艺术中心开幕!福州市闽江河畔新地标 / PES-Architects
多功能厅采用数控切割的坚固竹板作为饰面 ©Marc Goodwin
新作 | 福州海峡文化艺术中心开幕!福州市闽江河畔新地标 / PES-Architects
新作 | 福州海峡文化艺术中心开幕!福州市闽江河畔新地标 / PES-Architects
夜景 ©Marc Goodwin
新作 | 福州海峡文化艺术中心开幕!福州市闽江河畔新地标 / PES-Architects
河岸视角 ©Marc Goodwin
项目图纸
新作 | 福州海峡文化艺术中心开幕!福州市闽江河畔新地标 / PES-Architects
顶层平面图
新作 | 福州海峡文化艺术中心开幕!福州市闽江河畔新地标 / PES-Architects
首层平面图
新作 | 福州海峡文化艺术中心开幕!福州市闽江河畔新地标 / PES-Architects
新作 | 福州海峡文化艺术中心开幕!福州市闽江河畔新地标 / PES-Architects
立面图
新作 | 福州海峡文化艺术中心开幕!福州市闽江河畔新地标 / PES-Architects
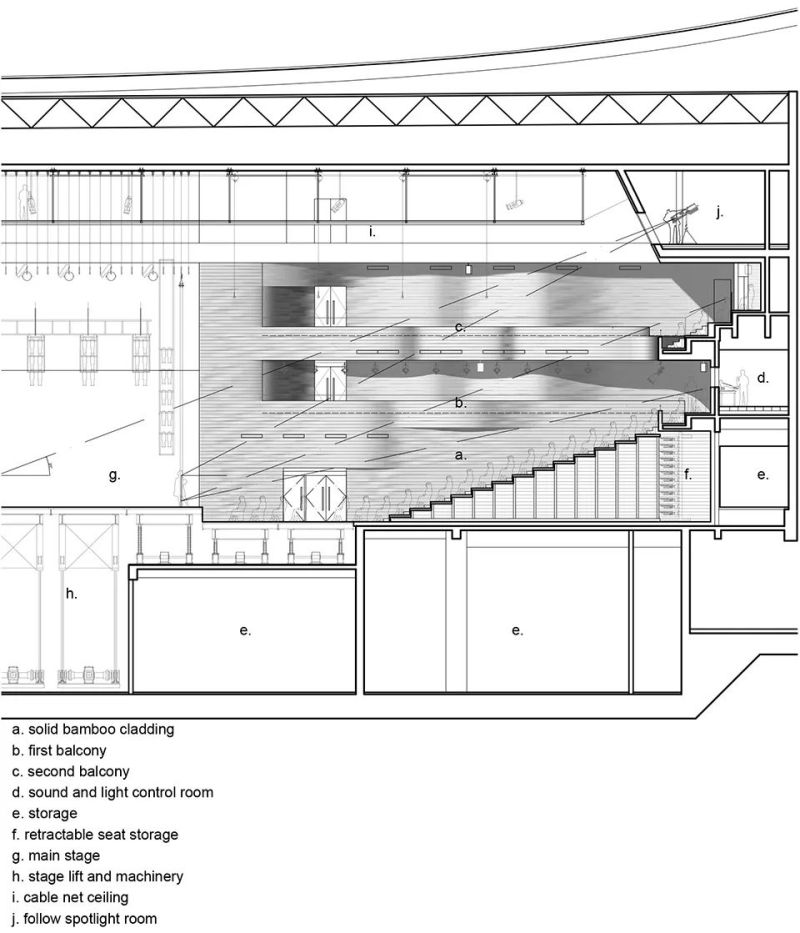
歌剧院剖面图
新作 | 福州海峡文化艺术中心开幕!福州市闽江河畔新地标 / PES-Architects
音乐厅剖面图
新作 | 福州海峡文化艺术中心开幕!福州市闽江河畔新地标 / PES-Architects
多功能厅剖面图
Client: Fuzhou New Town Development Investment Group Co., Ltd.Location: Mawei New Town, Fuzhou, ChinaStatus: Opening Ceremony October 2018Construction began: 2015Design began: 2014Area: Gross area 153,000 sq. m.Programme: Opera House (1,600 seats)Concert Hall (1,000 seats)Multi-functional Theatre (700 seats) Art Exhibition Hall, Cinema CentreHeight: 62 metresPrincipal Materials: Steel, concrete, bamboo and custom-developed ceramicPES-Architects Team: Lead architects and designersPekka Salminen (chief designer), Martin Lukasczyk (project architect), SamuelHsuan-yu Shih (ceramic artist), Lai Linli (project manager)Main design teamLi Wei (project coordinator), Guan Xiaojing (project manager),Yizhou Zhao, Masahide Nakane, Matti Kankkunen, Anna Blomqvist, Clara Juan,Uros Kostic, Antonio Barquinha, Martin Genet, Dou JianLocal architectXu Zongwu, CCEDGC Co. Ltd.
“原文链接:https://www.gooood.cn/fuzhou-strait-culture-and-art-centre-china-by-pes-architects.htm
经过该项目设计师授权发布此文章,拥有本文合法的英文及图片版权。经过独立的翻译和图片编排,拥有对此文章唯一绝对的中文版权和图片呈现版权。任何中文文字或图文排版顺序与我们一致皆侵权。如有任何疑问,请联系gooood.contact@gmail.com”
www.gooood.cn
请收藏或采用新域名进入我们的网站
新作 | 福州海峡文化艺术中心开幕!福州市闽江河畔新地标 / PES-Architects
微信公众号: gooood-cn 微博: 谷德设计网gooood
合作联系: gooood.contact@gmail.com
近期文章优选
新作 | 福州海峡文化艺术中心开幕!福州市闽江河畔新地标 / PES-Architects
新作 | 福州海峡文化艺术中心开幕!福州市闽江河畔新地标 / PES-Architects
新作 | 福州海峡文化艺术中心开幕!福州市闽江河畔新地标 / PES-Architects
新作 | 福州海峡文化艺术中心开幕!福州市闽江河畔新地标 / PES-Architects
新作 | 福州海峡文化艺术中心开幕!福州市闽江河畔新地标 / PES-Architects
相关标签
最新活动
往届回顾