行家说Display
LED新型显示产业智库
关注公众号
这个经济型酒店,可以给五星评价
一起设计 · 2016-12-23
这个经济型酒店,可以给五星评价
微型客房酒店
Arlo Hotels
Arlo酒店哈德逊广场店是由一个
老的建筑改造而来
一共拥有325间客房
由纽约设计事务所AvroKO设计完成
“城市探险家”为设计主题
01
公共区域
这个经济型酒店,可以给五星评价
酒店定位于年轻人
酒店过去的是一座印刷厂
所以采用大量的书籍为软装布置元素
酒店前台
这个经济型酒店,可以给五星评价
书籍的选择也格外讲究
从橘色、红色、绿色形成渐变的效果
这个经济型酒店,可以给五星评价
绿色封面的书籍
组成一面非常有质感的墙面
这个经济型酒店,可以给五星评价
这个经济型酒店,可以给五星评价
这个经济型酒店,可以给五星评价
这个经济型酒店,可以给五星评价
这个经济型酒店,可以给五星评价
这个经济型酒店,可以给五星评价
这个经济型酒店,可以给五星评价
这个经济型酒店,可以给五星评价
对应庭院的区域是全日餐厅
这个经济型酒店,可以给五星评价
这个经济型酒店,可以给五星评价
这个经济型酒店,可以给五星评价
钢骨架的木楼梯传递淡淡的工业风
搭配蓝色瓷砖墙面上用
复古又极具现代感的壁灯点缀
这个经济型酒店,可以给五星评价
这个经济型酒店,可以给五星评价
这个经济型酒店,可以给五星评价
这个经济型酒店,可以给五星评价
客人的意见簿用便签纸的形式
贴在墙面和软木板上
这个经济型酒店,可以给五星评价
02
客房
这个经济型酒店,可以给五星评价
包括紧凑型客房和各种舒适空间
该酒店被称为“在美国第一个
微型酒店具有四星级的设计标准”
这个经济型酒店,可以给五星评价
大床房
这个经济型酒店,可以给五星评价
这个经济型酒店,可以给五星评价
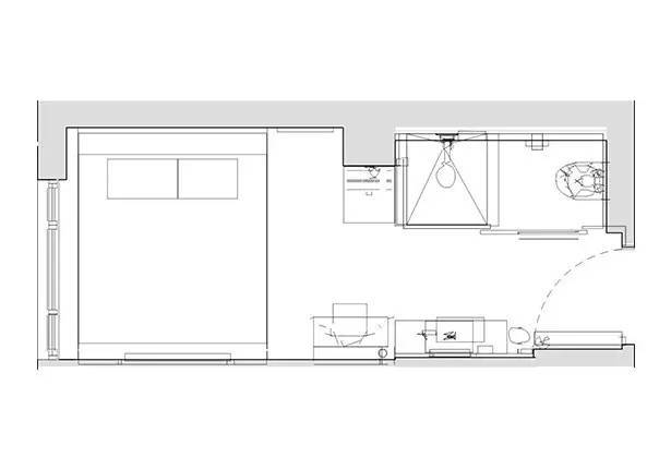
超小的客房面积
房间控制在15-16平方米
在有限的空间中如何做减法
成了空间设计的关键
这个经济型酒店,可以给五星评价
单人房
这个经济型酒店,可以给五星评价
写字桌可以折叠
让宽度控制在20公分
这个经济型酒店,可以给五星评价
定制的洗手台不到30公分
来保证走廊的宽度
这个经济型酒店,可以给五星评价
这个经济型酒店,可以给五星评价
这个经济型酒店,可以给五星评价
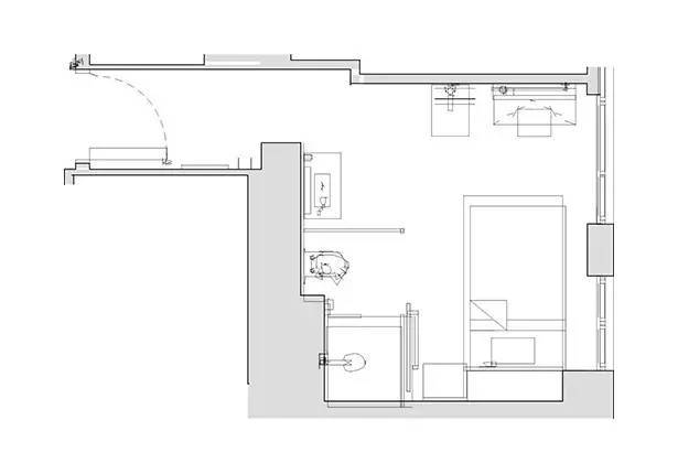
小户型的双人间采用了
上下铺的形式
取消了衣柜的设计
用墙板结合竖向挂钩代替
这个经济型酒店,可以给五星评价
这个经济型酒店,可以给五星评价
带有屋顶露台的双人间
把“衣柜”放在了两个床头板的中心处
这个经济型酒店,可以给五星评价
这个经济型酒店,可以给五星评价
房间虽小细节却不含糊
暗藏的插座、床头的双时区闹钟
这个经济型酒店,可以给五星评价
杂志架
这个经济型酒店,可以给五星评价
03
酒店外墙
这个经济型酒店,可以给五星评价
酒店保留原有的建筑风格
红砖的外墙饰面
这个经济型酒店,可以给五星评价
黑色的铁构架结合玻璃
复古的灯泡形成一个
即现代又复古的酒店入口
这个经济型酒店,可以给五星评价
最新活动
往届回顾