行家说Display
LED新型显示产业智库
关注公众号
方磊新作 | 壹舍设计办公室,现代极简又带帅气工业风
中装协设计网 · 2016-12-22
中国建筑装饰协会设计委员会 唯一官网
在生活多元化和工作高效率的今天,传统朝九晚五的格子间工作环境早已被现代都市所淘汰,各种灵活多变的工作坊和极具创意的工作空间应运而生。个性化的办公空间成为都市白领的新宠,更是引领了一个办公设计革新潮流。壹舍设计全新的办公室由其设计总监方磊先生打造。这个办公室是一个现代极简又带些许硬朗工业风的创意质朴空间。
方磊新作 | 壹舍设计办公室,现代极简又带帅气工业风
办公室的设计之初,设计师本着抛开一切华而不实的装饰,保留建筑最直观的空间属性,迎来onehouse的蜕变和新生。
方磊新作 | 壹舍设计办公室,现代极简又带帅气工业风
方磊非常关注光线在设计中的应用,这个办公空间设计中充分利用了自然光线。巨大的玻璃窗引入自然光,当阳光穿越镂空工艺LOGO,光线形成的影像赫然出现在墙面上。随着时间的推移,LOGO光影会在墙面流动变换不同位置的时光剪影,空间也仿佛活了起来。
方磊新作 | 壹舍设计办公室,现代极简又带帅气工业风
空间内部是白色的墙面、冷色调金属,与建筑原有的粗砺混凝土立柱,整洁光亮的灰色水泥漆地面以及结构细部形成对比。精致硬朗的壁灯,以及方磊为办公空间特别设计的沙发圆几等柔软细致的家居饰品恰到好处的消除了那些过于冷峻粗犷质感的工业元素。让人在质朴中又能感受到温馨。
方磊新作 | 壹舍设计办公室,现代极简又带帅气工业风
方磊新作 | 壹舍设计办公室,现代极简又带帅气工业风
方磊新作 | 壹舍设计办公室,现代极简又带帅气工业风
方磊一直坚信对于设计公司来讲,拥有一个完美的办公空间才能发挥最大的创意和灵感。所以在设计的最初,方磊首先就毫不犹豫的摒弃了传统格子间的设计。
在壹舍设计办公室最重要的开放办公区域,这样的设计最大限度的利用了自然光,室内与室外进行流场的互动。你能看到的是一个通透的,没有任何阻隔的空间,方磊将“开放共享”的概念融入其中。
白色的办公家具,给人一种轻盈感,让你在工作的时候,感受轻松。没有过多的装饰与繁琐的设计,这种空间留白是创意工作者最需要的氛围。
方磊新作 | 壹舍设计办公室,现代极简又带帅气工业风
方磊新作 | 壹舍设计办公室,现代极简又带帅气工业风
室内的构造被大胆的裸露出来,营造一种后工业时代的气息,天花板上的管道和机电系统清晰可见,展现出设计的层次感。设计师大胆使用钢筋、混凝土、木材、钢板等材料来表现城市工业美学的简单、实用、原始。这些细节突出了设计师的别样空间视角。
方磊新作 | 壹舍设计办公室,现代极简又带帅气工业风
方磊新作 | 壹舍设计办公室,现代极简又带帅气工业风
方磊新作 | 壹舍设计办公室,现代极简又带帅气工业风
壹舍办公室里用来区分不同办公区域的一长排仙人掌可谓是相当吸睛。一方面与一排爱迪生灯泡的组合,对开放办公区与黑色杉木盒子组成的私密办公区域进行软性分割,另一方面仙人掌有相当强的吸附电脑辐射的作用,让办公空间更加健康也为沉闷的氛围增添了生机。
方磊新作 | 壹舍设计办公室,现代极简又带帅气工业风
壹舍办公室的独立办公区域设计在延续了整体的工业风格的同时,又加入了温暖的色调,木地板以及木制椅子、木头艺术品,都让这个空间变得温馨。
方磊新作 | 壹舍设计办公室,现代极简又带帅气工业风
方磊新作 | 壹舍设计办公室,现代极简又带帅气工业风
方磊新作 | 壹舍设计办公室,现代极简又带帅气工业风
设计界叫嚣最多的一句话:设计留存下来因为它是艺术,因为它超越实用。我们则认为,美感与功能可以并存,使空间功能多样,又赋予空间个性,才是真正的设计。
方磊新作 | 壹舍设计办公室,现代极简又带帅气工业风
方磊新作 | 壹舍设计办公室,现代极简又带帅气工业风
方磊新作 | 壹舍设计办公室,现代极简又带帅气工业风
大型双扇移门划分餐厅与会议室,可自由闭合,使两个空间既相对独立,又互相连接,满足公司内部小型活动与会议的不同功能需求。
方磊新作 | 壹舍设计办公室,现代极简又带帅气工业风
方磊新作 | 壹舍设计办公室,现代极简又带帅气工业风
在动线的末端,划分出了休息区域,闲暇之余员工可在这里沟通交流或是阅读小憩。壹舍设计办公室的设计,打破了传统办公室的呆板、严肃形象,轻松营造出了一个美观又具人文关怀的办公空间。
方磊新作 | 壹舍设计办公室,现代极简又带帅气工业风
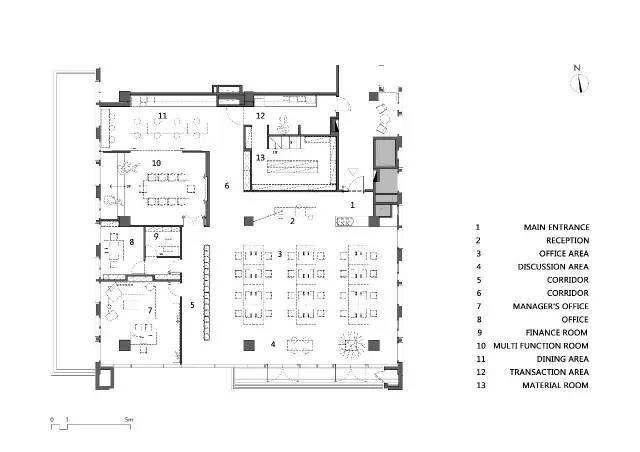
平面图
项目名称: 壹舍设计办公室
项目地点:上海
主要材料:拉丝不锈钢镀黑钛、杉木板染黑、自溜平、锈钢板 面积:480㎡ 设计师:方磊 参与设计:马永刚 视觉陈列:方磊、李文婷 摄影: Peter Dixie 洛唐建筑摄影
方磊新作 | 壹舍设计办公室,现代极简又带帅气工业风
方 磊
知名室内设计师,壹舍设计-方磊设计师事务所创始人。近年来获得诸多室内设计大奖。擅长用混搭、冲突等美学手法开发空间的可能性,以表像和内在的矛盾统一来表现设计的本质。方磊先生认为设计师思维是感性与理性的结合,设计工作实际是表里不一的呈现。他用成熟的设计技巧简化生活的外在形态,最当代的设计表达中隐约可见建筑语言,饱含个人的生活哲思。
所获奖项:
2016中国室内设计新势力榜全国榜设计师
2016现代装饰国际传媒奖年度办公空间大奖
2016时尚设计盛典年度最佳住宅空间设计
2016金堂奖·年度优秀样板间
2016金堂奖·年度优秀住宅公寓
2016中国室内设计新势力榜 上海十佳设计师
2015中国室内设计总评榜最佳办公空间奖
2015中国室内设计总评榜优秀住宅/样板房空间奖
2015年艾特奖上海最佳样板房设计奖
2015年金堂奖年度优秀样板间
(来源:中装协设计网,作品由壹舍设计供稿,版权归原著所有。)
方磊新作 | 壹舍设计办公室,现代极简又带帅气工业风
相关标签
最新活动
往届回顾