行家说Display
LED新型显示产业智库
关注公众号
只有45平的LOFT公寓,竟然还把一整面墙浪费给了大书架!
一起设计 · 2016-12-24
内小子
只有45平的LOFT公寓,竟然还把一整面墙浪费给了大书架!
每天给大家讲一个小宅故事
45㎡公寓
45平的LOFT旧公寓改造
利用阁楼的高度优势
把家里分为上下两层
小宅剖面图
只有45平的LOFT公寓,竟然还把一整面墙浪费给了大书架!
楼下的布置
是厨房与客厅
还有一个宽敞的大书房
一楼平面图
只有45平的LOFT公寓,竟然还把一整面墙浪费给了大书架!
丰富的储物空间
灵活多变的家具
让这里的每一处都拥有更多的可能性
只有45平的LOFT公寓,竟然还把一整面墙浪费给了大书架!
45平的LOFT旧公寓改造
不仅有完美的客厅
还有令人羡慕的大书架
只有45平的LOFT公寓,竟然还把一整面墙浪费给了大书架!
整面墙的木格子
既是书架
也是最便捷的收纳柜
只有45平的LOFT公寓,竟然还把一整面墙浪费给了大书架!
工作的桌面
可以随时变换方向
成为双人餐桌
只有45平的LOFT公寓,竟然还把一整面墙浪费给了大书架!
工作台面下的
移拉式小橱柜
分层的隔板架
让收纳变得井然有序
只有45平的LOFT公寓,竟然还把一整面墙浪费给了大书架!
书架旁的拐角位置
也不能浪费
设计一个凹面
成为私人的办公场地
只有45平的LOFT公寓,竟然还把一整面墙浪费给了大书架!
虽然位置小点
但靠近窗户,感觉真不赖
只有45平的LOFT公寓,竟然还把一整面墙浪费给了大书架!
开放式的厨房
一旁的窗面采用法国传统的护窗板
不仅有避光功能
隔音效果也不差
只有45平的LOFT公寓,竟然还把一整面墙浪费给了大书架!
超大的柜体
把所有的厨具包括锅碗瓢盆
全都隐藏其中
厨房整体简洁了不少
只有45平的LOFT公寓,竟然还把一整面墙浪费给了大书架!
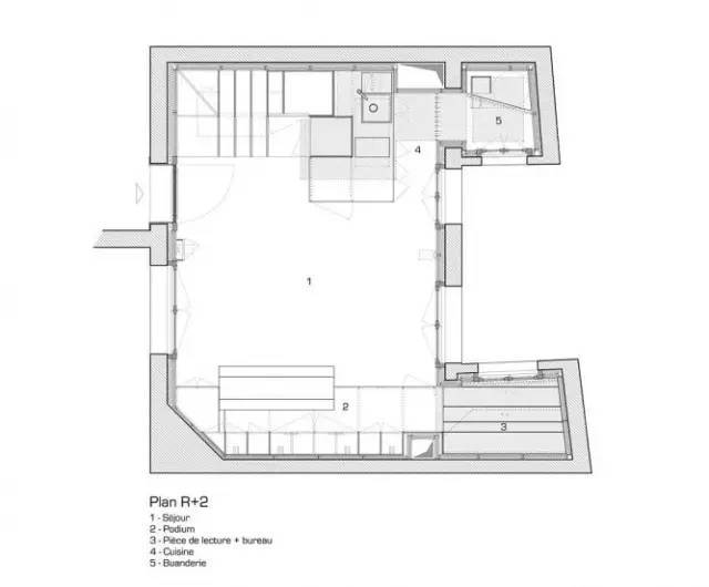
二楼平面图
只有45平的LOFT公寓,竟然还把一整面墙浪费给了大书架!
楼梯除了上下楼
这里的剩余空间
还能做成家用的鞋柜
只有45平的LOFT公寓,竟然还把一整面墙浪费给了大书架!
两侧的木格
也能用作平时的收纳储物
只有45平的LOFT公寓,竟然还把一整面墙浪费给了大书架!
整个家中的装饰
全都是大白墙与木饰面
LOFT阁楼风格完全统一
只有45平的LOFT公寓,竟然还把一整面墙浪费给了大书架!
灯饰的选用简洁版
这样的小铜灯
就很完美
只有45平的LOFT公寓,竟然还把一整面墙浪费给了大书架!
双人床设计在窗边
衣柜全都嵌入在墙壁里
只有45平的LOFT公寓,竟然还把一整面墙浪费给了大书架!
除了收纳橱柜
美化家装的绿植花卉也不能少
只有45平的LOFT公寓,竟然还把一整面墙浪费给了大书架!
只有45平的LOFT公寓,竟然还把一整面墙浪费给了大书架!
卫生间
大理石的洗浴间
与室外的如厕区
干湿分离
只有45平的LOFT公寓,竟然还把一整面墙浪费给了大书架!
人生不如意十有八九
唯有自己的窝不能将就
推荐一个只讲小宅的公众号
只有45平的LOFT公寓,竟然还把一整面墙浪费给了大书架!
长按二维码 一键加关注
在这里 分享最实在的小宅家居指南
只有45平的LOFT公寓,竟然还把一整面墙浪费给了大书架!
相关标签
最新活动
往届回顾