行家说Display
LED新型显示产业智库
关注公众号
46万一平米的奢华公寓,看完受刺激了!
中装协设计网 · 2016-12-22
这样的公寓才是奢华
豪华公寓
70 Vestry
位于纽约曼哈顿的Tribeca街区
紧邻哈德逊河
14层海滨公寓终于完成
70 Vestry只有46套公寓
这里被称为Tribeca街区最后的滨江海景
46万一平米的奢华公寓,看完受刺激了!
本文转自:一起设计
微信公号:together-design
站在房间的露台可以看到哈德逊河
哈德逊河公园、洛克菲勒公园
自由女神像的一览无遗的全景
46万一平米的奢华公寓,看完受刺激了!
01
建筑设计
罗伯特A.M. 斯特恩
46万一平米的奢华公寓,看完受刺激了!
罗伯特·斯特恩
作为世界后现代古典主义建筑鼻祖
耶鲁大学建筑学院院长
身兼建筑师、教师以及作家三重身份的他
影响了整整一代建筑师的成长
46万一平米的奢华公寓,看完受刺激了!
外立面采用低调经典的石材
是罗伯特.斯特恩一贯的
“有现代意义的传统风格”
46万一平米的奢华公寓,看完受刺激了!
46万一平米的奢华公寓,看完受刺激了!
外立面的石材来自
法国南部塞纳河边采石场
46万一平米的奢华公寓,看完受刺激了!
用这种天然的复古石材
更好体现Tribeca区的文艺传统
在夕阳的照射下呈现出温暖的质感
46万一平米的奢华公寓,看完受刺激了!
46万一平米的奢华公寓,看完受刺激了!
46万一平米的奢华公寓,看完受刺激了!
车入口的设计也十分大器
黑色线条和铁艺的大门
勾勒出建筑的入口
46万一平米的奢华公寓,看完受刺激了!
公寓门头的设计永远是
罗伯特.斯特恩特别重视的
虽然外墙的设计风格类似
每个项目的雨棚处都极具设计感
46万一平米的奢华公寓,看完受刺激了!
大堂采用与木纹石与金色线条的相拼
低调内敛却透露出奢华的高贵气质
46万一平米的奢华公寓,看完受刺激了!
02
室内设计
Daniel Romualdez
46万一平米的奢华公寓,看完受刺激了!
Daniel Romualdez生于菲律宾
1977年移居美国
在耶鲁大学攻读艺术和建筑学
曾经在罗伯特·斯特恩的事务所工作
1993年开办了自己的公司
主要承接高档私人住宅的设计
以提供高品质的专业服务和细节打造闻名
46万一平米的奢华公寓,看完受刺激了!
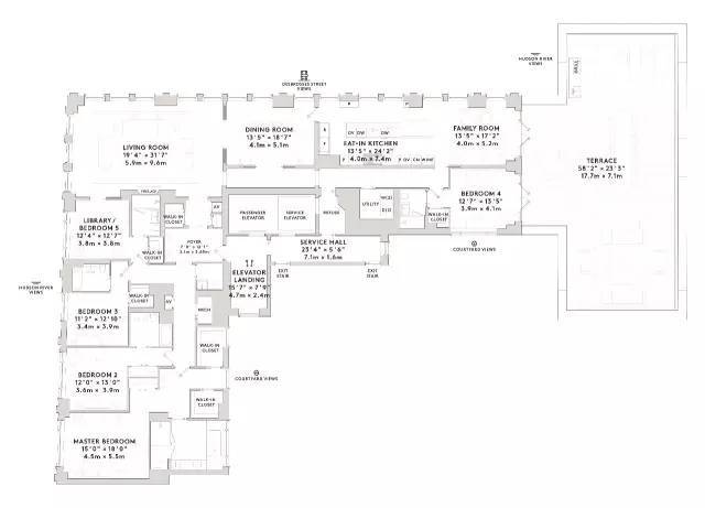
顶层最大的户型房432平米
拥有5个卧室、7个卫生间和一个超大露台
售价2950万美金,约2亿人民币
每平米售价约46万人民币
46万一平米的奢华公寓,看完受刺激了!
Daniel认为当房主回到家的一刻
能感受到最细致入微的体贴
才是真正的奢华感
46万一平米的奢华公寓,看完受刺激了!
他选用天然的木饰面和石灰石
亚麻质地的地毯、简洁的装饰品
没有视觉上的臃肿感
46万一平米的奢华公寓,看完受刺激了!
46万一平米的奢华公寓,看完受刺激了!
一个独立的家庭图书馆
46万一平米的奢华公寓,看完受刺激了!
定制的橡木酒柜和把天然石材的吧台
这里是一个工作后休闲的地方
46万一平米的奢华公寓,看完受刺激了!
46万一平米的奢华公寓,看完受刺激了!
宽敞的用餐区域
46万一平米的奢华公寓,看完受刺激了!
46万一平米的奢华公寓,看完受刺激了!
46万一平米的奢华公寓,看完受刺激了!
46万一平米的奢华公寓,看完受刺激了!
46万一平米的奢华公寓,看完受刺激了!
浴室内墙地面的大理石
用独特的拼贴方式
46万一平米的奢华公寓,看完受刺激了!
屋顶的露台可以举办PARTY
可以俯瞰曼哈顿的夜景
46万一平米的奢华公寓,看完受刺激了!
46万一平米的奢华公寓,看完受刺激了!
03
公共区域
46万一平米的奢华公寓,看完受刺激了!
泳池配有桑拿房
46万一平米的奢华公寓,看完受刺激了!
健身房的设计
46万一平米的奢华公寓,看完受刺激了!
壁球室
46万一平米的奢华公寓,看完受刺激了!
儿童活动区非常的天真烂漫的色调
足够孩子们在这里玩上一整天
46万一平米的奢华公寓,看完受刺激了!
最新活动
往届回顾