行家说Display
LED新型显示产业智库
关注公众号
光会装逼不行,还要会装灯!
西顿照明 · 2016-12-18
光会装逼不行,还要会装灯!
建筑也要开光?
一起猜猜看
光会装逼不行,还要会装灯!
就那个黑乎乎的
猜猜看是什么建筑
光会装逼不行,还要会装灯!
猜地铁通风井的请主动面壁一小时
走近
感受一下
光会装逼不行,还要会装灯!
远景的小庙有线索
光会装逼不行,还要会装灯!
光会装逼不行,还要会装灯!
感受下这气氛
光会装逼不行,还要会装灯!
猜不出来?
进去看看
光会装逼不行,还要会装灯!
这神秘的灯光
光会装逼不行,还要会装灯!
夯土内墙
光会装逼不行,还要会装灯!
万神庙似的采光顶
光会装逼不行,还要会装灯!
还是猜不出?
到核心功能区看看
光会装逼不行,还要会装灯!
充满
神秘感的小匣子
光会装逼不行,还要会装灯!
到底什么鬼?
光会装逼不行,还要会装灯!
还真就跟鬼有那么点儿关系
光会装逼不行,还要会装灯!
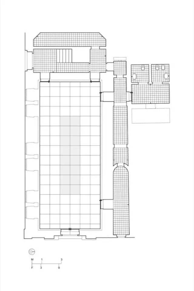
漂亮的图纸
光会装逼不行,还要会装灯!
光会装逼不行,还要会装灯!
看平面
英语好的应该看到了
这是一个日本的社区灵堂
小匣子应该是存放骨灰的地方
猜到的有么?
请受我一拜!
接下来这一发
别说猜了
小西直接看愣是没看懂TA是个啥
算了
看图吧
光会装逼不行,还要会装灯!
平面很简单,
右边一个长廊进去,
到底右边厕所,
左边一个大房间。
光会装逼不行,还要会装灯!
材质朴素
光线神圣
光会装逼不行,还要会装灯!
怎么看也就这么几个材质,
挺精致但没啥花头
光会装逼不行,还要会装灯!
光会装逼不行,还要会装灯!
光会装逼不行,还要会装灯!
牛逼之处在于
看不出来是啥功能
设计说明云里雾里
贼适合拿来当论文
就是那种每个词都认识
合在一起愣是看不懂TA说啥
光会装逼不行,还要会装灯!
读书少的弱点暴露无遗
拉倒吧
我放弃治疗了
光会装逼不行,还要会装灯!
比起云里雾里
还是更喜欢简单粗暴
来一发北欧的
也猜猜看是什么建筑吧
光会装逼不行,还要会装灯!
逼格满满的概念图
光会装逼不行,还要会装灯!
造好更是酷你一脸
光会装逼不行,还要会装灯!
造好五年开裂不难
咱这豆腐渣有的是
牛逼的是刚造好就这效果
光会装逼不行,还要会装灯!
室内
光会装逼不行,还要会装灯!
而且不只有粗野
还有考究和细腻
光会装逼不行,还要会装灯!
与周边以及远处工业建筑的对比
光会装逼不行,还要会装灯!
一面粗野
一面精致
都是你做不到的程度
太讨厌了!
光会装逼不行,还要会装灯!
光会装逼不行,还要会装灯!
所以看出是什么房子了么?
光会装逼不行,还要会装灯!
这是一个办公楼
破碎混凝土效果是个楼梯间
下图左边那个
光会装逼不行,还要会装灯!
独特的混搭和对比
光会装逼不行,还要会装灯!
光会装逼不行,还要会装灯!
光会装逼不行,还要会装灯!
最想抄的就是这个快碎了又漏光的楼梯间!
光会装逼不行,还要会装灯!
今天压轴是个小住宅
光会装逼不行,还要会装灯!
光会装逼不行,还要会装灯!
光会装逼不行,还要会装灯!
风景秀丽
得天独厚
光会装逼不行,还要会装灯!
本身也是酷到姥姥家
光会装逼不行,还要会装灯!
光会装逼不行,还要会装灯!
就一个大水泥块
光会装逼不行,还要会装灯!
光会装逼不行,还要会装灯!
但素!人家是可以动的
打开滑动外面板
光会装逼不行,还要会装灯!
光会装逼不行,还要会装灯!
就是一个比较通透的小住宅了
光会装逼不行,还要会装灯!
风骚的配镜马
光会装逼不行,还要会装灯!
简单利索的室内
l
光会装逼不行,还要会装灯!
光会装逼不行,还要会装灯!
光会装逼不行,还要会装灯!
眼睛拉开一点
光会装逼不行,还要会装灯!
光会装逼不行,还要会装灯!
有个亮点在下三路
光会装逼不行,还要会装灯!
大盒子下面有个小门洞
进去一看
是个半封闭储藏间!
光会装逼不行,还要会装灯!
最风骚的还要数这个
光会装逼不行,还要会装灯!
这灯光也是没sei了
上面房间一点不管
对准下三路一顿照
还是开足马力那种
有点梦露站在出风口吹裙子的赶脚哈
不过人家下三路有料啊
你这白花花的混凝土
能跟人家白花花的大腿比么?
整这么亮干啥玩意儿?
end
本文来源:OnePoint儿
ID:onepointer
最新活动
往届回顾