行家说Display
LED新型显示产业智库
关注公众号
厂房改造的住宅超有范儿,旧也是另外一种美
一起设计 · 2016-12-19
破旧也是另外一种美
厂房改造
Factory Renovation
越旧越迷人
这破旧的老厂房或许你看不上
在改造风盛行的今日可是炙手可热的住宅
厂房改造的住宅超有范儿,旧也是另外一种美
砖墙已开始褪色
但房屋的结构还算稳固
因此,房子的内墙
仍然保持原来的样子
厂房改造的住宅超有范儿,旧也是另外一种美
用黑铁加固
客厅中的老木梁吊顶
室内不铺木地板
全都是清水泥地面
厂房改造的住宅超有范儿,旧也是另外一种美
沙发都不用定做
直接用水泥浇溉成沙发的形状
在上方放置家居垫即可
厂房改造的住宅超有范儿,旧也是另外一种美
渐渐褪色的老砖墙
是最好的装饰
墙上一点家挂饰都未放置
就连书架
都是放在一旁的钢铁置物架上
厂房改造的住宅超有范儿,旧也是另外一种美
U形的沙发布局
足以开一场家庭聚会
厂房改造的住宅超有范儿,旧也是另外一种美
厨房的吊顶经过翻修
用上了老松木
橱柜一体化的厨房
显得厨房陈设极为简洁
厂房改造的住宅超有范儿,旧也是另外一种美
水泥制作的厨台
与工业风的家居环境甚为搭配
厂房改造的住宅超有范儿,旧也是另外一种美
置物架与烹饪区分离
厨房里大多偏深灰色
除了那湛蓝色的冰箱外壳
厂房改造的住宅超有范儿,旧也是另外一种美
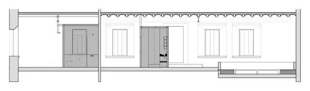
门前的立面图
厂房改造的住宅超有范儿,旧也是另外一种美
厂房原有的石头与红砖壁面
裸露的原始建材
不用过多的装饰就很好看
厂房改造的住宅超有范儿,旧也是另外一种美
厂房改造的住宅超有范儿,旧也是另外一种美
电路的布置
也按照最老套的方式
全都暴露在墙面的外部
厂房改造的住宅超有范儿,旧也是另外一种美
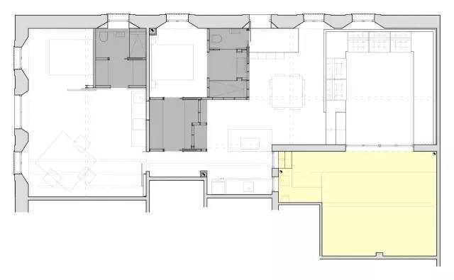
175平的老房子
在闹市区里
可是价值不菲
室内的平面布置
厂房改造的住宅超有范儿,旧也是另外一种美
起居室共有两间
客厅的位置
设计在它们的外面
厂房改造的住宅超有范儿,旧也是另外一种美
厂房改造的住宅超有范儿,旧也是另外一种美
移动的仓谷门
一面是主卧、一面是更衣室
厂房改造的住宅超有范儿,旧也是另外一种美
卧房的外围
设计了水泥质地的洗手台
厂房改造的住宅超有范儿,旧也是另外一种美
厂房改造的住宅超有范儿,旧也是另外一种美
厂房改造的住宅超有范儿,旧也是另外一种美
卧房的陈设
原木的床头靠背
所有的收纳集中在窗户两侧
厂房改造的住宅超有范儿,旧也是另外一种美
厂房改造的住宅超有范儿,旧也是另外一种美
衣帽间
厂房改造的住宅超有范儿,旧也是另外一种美
卫生间
厂房改造的住宅超有范儿,旧也是另外一种美
厂房改造的住宅超有范儿,旧也是另外一种美
......
175平的老厂房
虽然破旧
精心改造后,宛若新生
厂房改造的住宅超有范儿,旧也是另外一种美
推荐一个只讲小房子的公众号
厂房改造的住宅超有范儿,旧也是另外一种美
长按二维码 一键加关注
在这里 分享最实在的小宅家居指南
厂房改造的住宅超有范儿,旧也是另外一种美
最新活动
往届回顾