行家说Display
LED新型显示产业智库
关注公众号
新生活的典范 | 德国House 36
新 生 活 的 典 范
新生活的典范 | 德国House 36
House 36
设计Matthias Bauer Associates
新生活的典范 | 德国House 36
House 36位于德国斯图加特,坐落在陡峭的山坡上,建筑周围的景色宜人,可俯瞰斯图加特城市峡谷。
建筑由灰色混凝土巧妙建造,结合石洞和玻璃房的造型,形似水晶。无缝墙和三角屋顶由单块隔热混凝土制成。把结构、隔热和技术设施整合到住宅的大型浇筑体量上,并通过玻璃的透明性和反射性达到完美平衡。室内外有粗齿锯纹理,创造出多样化的当代空间和氛围。
房屋面朝小山和上方道路的一侧较为封闭,而向绿色空间和室外景观一侧敞开,,可欣赏整个城市和天空的景色。房屋墙壁和三角形屋顶用安装了大量带状玻璃,创建一个关联环境的独特建筑,兼具私密空间和开放空间。
新生活的典范 | 德国House 36
新生活的典范 | 德国House 36
基地平面图
新生活的典范 | 德国House 36
新生活的典范 | 德国House 36
新生活的典范 | 德国House 36
新生活的典范 | 德国House 36
新生活的典范 | 德国House 36
新生活的典范 | 德国House 36
北立面
新生活的典范 | 德国House 36
东立面
新生活的典范 | 德国House 36
南立面
新生活的典范 | 德国House 36
西立面
从远处看房子以三角斜屋顶和谐融入住宅环境。东边的主入口通向单一空间,用于日常家庭生活,西面敞向花园。下面是花园空间,有卧室、工作区和浴/桑拿区。在阁楼部分,几何形屋顶影响着室内空间,主卧室和浴室分别布置在较高和较低的空间处,像山洞一样。
三层楼通过中央阶梯连接,最后11个台阶通向父母的主卧室,阶梯精巧浮在细钢丝网之间,没有额外的连接。住宅通过两片承重墙支撑着屋顶的折叠壳体结构。无框玻璃窗格与外部边缘平齐,室内一侧则设计了宽宽的木质框架。
新生活的典范 | 德国House 36
新生活的典范 | 德国House 36
新生活的典范 | 德国House 36
新生活的典范 | 德国House 36
剖面图
新生活的典范 | 德国House 36
新生活的典范 | 德国House 36
新生活的典范 | 德国House 36
新生活的典范 | 德国House 36
大型窗户平衡了私密空间和日常空间,并引入自然光线,沟通室内外空间。孔窗区设置在要求隐私的地方,在下沉浴缸的上方创造强烈的光影效果。简约的材料如玻璃、隔热混凝土、可持续木材和矿物材料结合类似天然石墙的粗糙混凝土墙壁,触感温暖。
在10 m × 12 m的适度建筑面积上,建筑师创造了宽敞的效果。不同氛围提供各种独特的生活体验。 House 36将建筑风格、结构、隔热和系统等多种因素结合在这一单层混凝土建筑上。
建筑采用天然或再生材料建造而成,把建筑结构对环境的影响降至最低。大块墙壁和玻璃能获得主动及被动太阳能和通风。像老式的石屋一样,室内温度变化缓慢,冬天暖得更长,夏天凉得更久。舒适的房间和温暖的表面温度与理想的湿度平衡和传统保暖问题相结合。能源消耗和维护成本减少。House 36不光有迷人的外观,更是新型整体建筑的典范。
新生活的典范 | 德国House 36
地下室平面图
新生活的典范 | 德国House 36
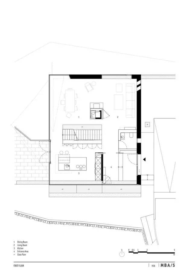
首层平面图
新生活的典范 | 德国House 36
二层平面图
新生活的典范 | 德国House 36
阁楼平面图
新生活的典范 | 德国House 36
屋顶
工程名称:House 36
坐落地点:德国 斯图加特
面积:310 m²
设计:Matthias Bauer Associates
立面设计:VS-A
竣工时间:2015
摄影:Roland Halbe
2016.11期
乡土建筑
设计 专辑
点击封面
了解详情
乡建也许是设计师开拓的新的战场,也许是文艺青年情怀的表达,也许是村民希望追求更加富裕生活的述求,在我们看来,这些并不矛盾,“新乡村建设”给农村带来了资本、情怀、现代化的设施,使凋敝的农村呈现出繁荣的景象,也许可以促进新的乡绅阶层的产生,从而促进地方性文化及传统的苏醒,在全球化越来越为人诟病的当下成为我们的另外一种选择。
最新活动
往届回顾