行家说Display
LED新型显示产业智库
关注公众号
是家也是工作室-完美的开间公寓!
idc室内设计与装修 · 2016-08-05
是家也是工作室-完美的开间公寓!
以人体尺度为标准对细节进行设计的建筑师Silvia Allori对一间位于70年代建筑中的小公寓进行了改造设计。她以白色层压板作为最主要的建筑材料,在古老的建筑中打造了一个充满现代气息的居住空间。
天花之下
一系列细长的体量打破了平淡的空间
划分了空间
而细长的体量延伸至入口空间
仿佛在指引着人们前行的方向
是家也是工作室-完美的开间公寓!
在客厅
白色层压板形成了一个个内凹的小壁龛
将下拉的桌子和储物柜隐藏起来
是家也是工作室-完美的开间公寓!
是家也是工作室-完美的开间公寓!
白色层压板覆盖着墙壁
墙壁上的小孔可固定家具
是家也是工作室-完美的开间公寓!
灯光从板上的的小孔中穿透出来
带来奇妙的光影变化
是家也是工作室-完美的开间公寓!
用生存工具包中的恒温急救毯
打造而成的布帘悬挂在走廊的一侧
将厨房空间与走道分隔开来
是家也是工作室-完美的开间公寓!
是家也是工作室-完美的开间公寓!
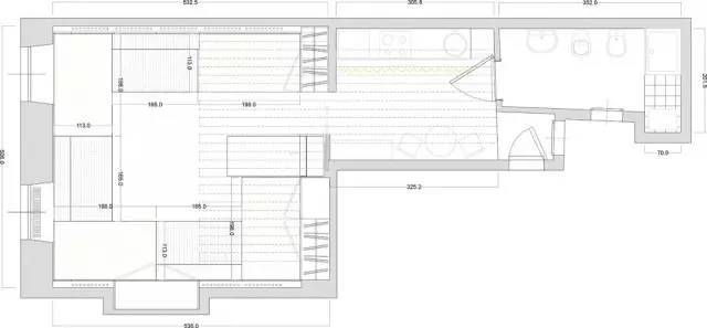
看似随意的空间设计实则严格遵循着模数化的设计手法:按照165cm、198cm与113cm三个长度所分割的空间极富秩序感,契合了模数的床铺和沙发穿插其中,空间整洁而灵活。
是家也是工作室-完美的开间公寓!
本月新刊
是家也是工作室-完美的开间公寓!
2016.08期
韩国设计师专辑
点击封面
了解详情
本期是韩国设计师专辑,此次让我们惊喜的并不是庞大而著名的设计却是那些小型的建筑及室内空间,他们没有获得世界的目光,却以朴质的用材、平实的空间和人性化的功能赢得了使用者的赞誉。
相关标签
最新活动
往届回顾