行家说Display
LED新型显示产业智库
关注公众号
用缤纷的色块定制属于自己的活力居宅!
idc室内设计与装修 · 2016-07-04
彩色涂料,纹理、家具以及居住者的日常一同组成了这个位于巴塞罗那的小公寓。舒适的空间不仅满足了居住的基本需求,也突显出两位年轻业主精致有趣的收藏。 他们正计划着用那些并不昂贵、但更有趣多彩的东西去占领公寓的每一个房间。
客厅
多元的色彩让空间充满活力与朝气
波浪形的天花增添一份别样趣味
门边不同颜色的色块成为装饰的独特元素
用缤纷的色块定制属于自己的活力居宅!
用缤纷的色块定制属于自己的活力居宅!
小书房
紧邻客厅的空间被规划成一个工作区域
墙上的装饰画是成为仅有的装饰
简单的空间却也功能新十足
用缤纷的色块定制属于自己的活力居宅!
厨房与餐厅
餐厨一体的空间以白色为主
琳琅满目的餐具为空间注入不同的色彩
橱柜的部分区域以黄色点缀
跳跃但不失和谐
用缤纷的色块定制属于自己的活力居宅!
用缤纷的色块定制属于自己的活力居宅!
用缤纷的色块定制属于自己的活力居宅!
卧室
三分之一墙体被粉刷成绿色
与粉色的织品形成撞色的效果
再以灰色作为中和颜色
简单的层板陈列一些装饰品
木质的装饰画
用普通的元素构成这样一个温馨又独特的私人空间
用缤纷的色块定制属于自己的活力居宅!
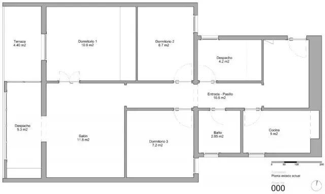
装修之前的平面
原来的结构墙体较多
空间划分复杂
用缤纷的色块定制属于自己的活力居宅!
装修之后的平面
拆除了一些墙体,让空间更具开放性
用缤纷的色块定制属于自己的活力居宅!
本月新刊
用缤纷的色块定制属于自己的活力居宅!
2016.07期
文化建筑专辑
点击封面
了解详情
在此次的文化建筑专辑里,一览海内外博物馆、美术馆、文化中心、大剧院等等,愿每个报道的建筑,除设计之外,都能唤起读者对文化表达的思考。
用缤纷的色块定制属于自己的活力居宅!
长按二维码,加关注
用缤纷的色块定制属于自己的活力居宅!
官方微信号:idc_1986
网址:www.idc.net.cn
微博:@idc室内设计与装修
(杂志购买咨询:025-85427006)
用缤纷的色块定制属于自己的活力居宅!
最新活动
往届回顾