行家说Display
LED新型显示产业智库
关注公众号
工业风中的新艺术,斯洛文尼亚公寓设计!
idc室内设计与装修 · 2016-07-01
工业风中的新艺术,斯洛文尼亚公寓设计!
公寓位于一栋十九世纪联排住宅中,有着既温馨又清冷、既柔软又刚直的双重特点,对周围环境既开放又封闭,与自身的历史既相连又冲突。客厅区域与整体空间作为两种截然不同但又相关的环境,通过强烈对比的材料和特点形成一种互补。
工业风中的新艺术,斯洛文尼亚公寓设计!
客厅
带纹理的暖色材料
带来新艺术风格的视觉效果
从玛瑙石的开放式壁炉
到复古硬木地板
都构成了倒映在天花吊顶圆形镜面中的魔幻壁画
工业风中的新艺术,斯洛文尼亚公寓设计!
当代感十足的吊灯
灯光反映在屋顶的镜面和抛光的石面上
而玛瑙石壁炉也成为另一个光源
工业风中的新艺术,斯洛文尼亚公寓设计!
屋顶悬挂的网格状铝制横梁
定义了客厅以外的空间
客厅区域可以通过打开推拉门
将空间延伸到餐厅,甚至卧室和浴室
从而使环境具有从完全开放到更加复杂的多种功能
工业风中的新艺术,斯洛文尼亚公寓设计!
工业风中的新艺术,斯洛文尼亚公寓设计!
工业风中的新艺术,斯洛文尼亚公寓设计!
材料细节
色彩与材质
是决定整个公寓氛围的重要元素
工业风中的新艺术,斯洛文尼亚公寓设计!
工业风中的新艺术,斯洛文尼亚公寓设计!
悬挂在铝制网格上的光源作为照明设备
使用铝,有机玻璃,织物,混凝土和镜面等材料
进一步地营造一种工业感
工业风中的新艺术,斯洛文尼亚公寓设计!
公寓的布局可以体验到一点偷窥的感觉
从沙发的位置,看向壁炉、餐桌和卧室
坐在餐桌同样可以观察厨房、卧室、甚至是浴室
挑逗着生活区域的边界。
工业风中的新艺术,斯洛文尼亚公寓设计!
工业风中的新艺术,斯洛文尼亚公寓设计!
厨房
银色基调
带来现代化的视觉体验
工业风中的新艺术,斯洛文尼亚公寓设计!
推拉门可以营造出整洁且功能分明的空间
打开推拉门,可以带来多层的视觉体验
从工业到复古,从虚到实,从实际空间到镜面反射
工业风中的新艺术,斯洛文尼亚公寓设计!
在卧室的镜面上
可以看到客厅
工业风中的新艺术,斯洛文尼亚公寓设计!
浴室
玻璃的运用
让空间更显通透和明亮
工业风中的新艺术,斯洛文尼亚公寓设计!
工业风中的新艺术,斯洛文尼亚公寓设计!
工业风中的新艺术,斯洛文尼亚公寓设计!
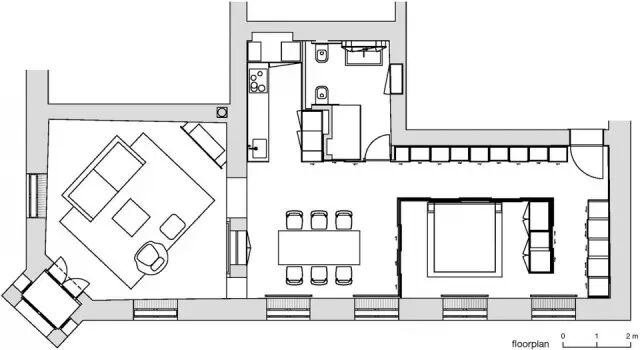
各个功能分区
相互独立又相互关联
工业风中的新艺术,斯洛文尼亚公寓设计!
本月新刊
工业风中的新艺术,斯洛文尼亚公寓设计!
2016.07期
文化建筑专辑
点击封面
了解详情
在此次的文化建筑专辑里,一览海内外博物馆、美术馆、文化中心、大剧院等等,愿每个报道的建筑,除设计之外,都能唤起读者对文化表达的思考
官方微信号:idc_1986
微博:@idc室内设计与装修
(杂志购买咨询:025-85427006)
往届回顾