行家说Display
LED新型显示产业智库
关注公众号
南京先锋书店的第11家分店,开在杭州乡村土坯房里
idc室内设计与装修 · 2016-06-28
点击上方“公众号”可订阅哦!
南京先锋书店的第11家分店,开在杭州乡村土坯房里
先锋书店是不少“文艺青年”南京游的必去“景点”之一。这家创立于 1996 年的民营书店,如今已有 11 家分店,其中既有像是分布于南京总统府、美龄宫以及南京博物院等景区的分店,也有如碧山书局这样位于黄山脚下的共有书店实验项目。
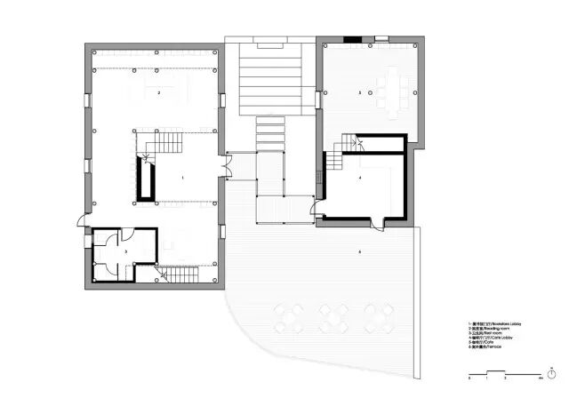
云夕图书馆位于杭州桐庐县莪山乡戴家山村
图书馆的主体空间
是位于村庄主街旁闲置的一处独立院落
包括两座黄泥墙建造的房子
和一个从斜坡上穿出的平台
操刀设计的是来自南京的张雷联合建筑事务所
南京先锋书店的第11家分店,开在杭州乡村土坯房里
南京先锋书店的第11家分店,开在杭州乡村土坯房里
以当地独特的畲族山村
地域自然人文景观为背景
设计团队保留了房屋和院落原有的结构
将破败的房屋状态修整还原到健康的状态
赋予这些土坯墙、瓦屋顶和老屋架功能上的公共性
使其成为当地村民和来访者的公共生活中心
南京先锋书店的第11家分店,开在杭州乡村土坯房里
南京先锋书店的第11家分店,开在杭州乡村土坯房里
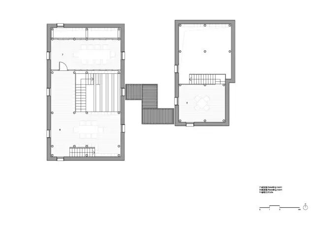
为了提升图书馆的新功能
设计团队将屋顶高度提升了 60 厘米
利用正价的高度设置了高窗 通风
改善采光条件,且可以看到周边的竹林景观
外立面图墙上预留的小孔,便于安置竹竿
满足日常生活晾晒物品的需求
南京先锋书店的第11家分店,开在杭州乡村土坯房里
南京先锋书店的第11家分店,开在杭州乡村土坯房里
南京先锋书店的第11家分店,开在杭州乡村土坯房里
建筑内部的楼梯井
部分平台和可以穿行的书架
共同构成了室内公共空间
南京先锋书店的第11家分店,开在杭州乡村土坯房里
南京先锋书店的第11家分店,开在杭州乡村土坯房里
南京先锋书店的第11家分店,开在杭州乡村土坯房里
云夕图书馆官方微博描述了在戴家山的“三大惬意”:
“午后在书店露台看书发呆
骑着电驴悠闲上下山
雨后感受湿润气息看远山云聚云散
这恐怕也是在城市书店享受不到的远离尘世的奢侈。”
南京先锋书店的第11家分店,开在杭州乡村土坯房里
南京先锋书店的第11家分店,开在杭州乡村土坯房里
本月新刊
南京先锋书店的第11家分店,开在杭州乡村土坯房里
2016.07期
文化建筑专辑
在此次的文化建筑专辑里,一览海内外博物馆、美术馆、文化中心、大剧院等等,愿每个报道的建筑,除设计之外,都能唤起读者对文化表达的思考
南京先锋书店的第11家分店,开在杭州乡村土坯房里
官方微信号:idc_1986
网址:www.idc.net.cn
微博:@idc室内设计与装修
最新活动
往届回顾