行家说Display
LED新型显示产业智库
关注公众号
半透明的“室内村落”——保利WeDo教育机构
idc室内设计与装修 · 2016-06-11
半透明的“室内村落”——保利WeDo教育机构
保利WeDo是保利文化集团旗下的新型儿童教育品牌,旨在挖掘和培养孩子在音乐方面的天赋和潜能,提高综合艺术修养。建筑营应邀设计其位于北京工体北路永利国际商场内的教学空间。如何通过空间设计突破固化的结构限制,实现开放、自由、灵活的现代教学环境,并让孩子与空间产生亲密感,是设计所思考的首要问题。
▽ 概念图解 diagram
半透明的“室内村落”——保利WeDo教育机构
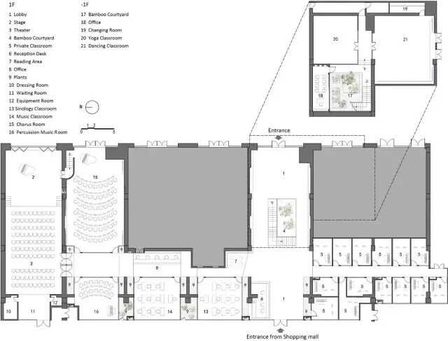
项目分布于商场一层七个柱跨之间,空间基本结构是框架+剪力墙,总面积约1000平米,并附带约300平米的地下室。建筑营尽量拆除了所有砌块墙体,打通原本封闭的房间,用一条走廊将教室及公共空间进行连接,所有教学空间向商场中庭水平展开,包括音乐教室、私教室、接待厅、剧场和排练厅等。
▽ 大厅 Lobby
半透明的“室内村落”——保利WeDo教育机构
半透明的“室内村落”——保利WeDo教育机构
坡折的屋顶延伸至墙面和地面,构成了连续延伸的教室和公共区域。整个教学空间好似一座半透明的“室内村落”,根据使用需求呈现出多样的尺度与质感空间,让孩子在亲切、自然、舒适的环境中演奏和学习。
▽ 图书区 Reading Area
半透明的“室内村落”——保利WeDo教育机构
▽ 办公区 Office Area
半透明的“室内村落”——保利WeDo教育机构
▽ 中庭剖面图 Section
半透明的“室内村落”——保利WeDo教育机构
竹庭院构成入口大厅的景观焦点,同时是上下层交通转换的节点。在教室之间利用墙体的空隙产生景观区,形成室内的“室外”空间。而植物与书架的结合让孩子的阅读与休息轻松、自然的发生。
▽ (left 左)私教区 Private Classroom (right 右)音乐教室 Music Classroom
半透明的“室内村落”——保利WeDo教育机构
半透明的“室内村落”——保利WeDo教育机构
▽ 音乐教室 Music Classroom
半透明的“室内村落”——保利WeDo教育机构
音乐教室要同时满足隔音和吸音的声学要求。音乐教室墙面均采用了三层中空玻璃进行隔音,吊顶采用木纹转印铝制格栅和铝板,除了隔音处理之外,坡屋顶的形态和格栅的起伏表面也起到混音作用。
▽ 排练厅 Rehearsal Room
半透明的“室内村落”——保利WeDo教育机构
▽ 小剧场 Small Theatre
半透明的“室内村落”——保利WeDo教育机构
半透明的“室内村落”——保利WeDo教育机构
小剧场由于空间高度有限,因此不设吊顶,仅在人的尺度范围内采用了木质吸音板,在视觉上让空间变高,同时取得良好的声学效果。
半透明的“室内村落”——保利WeDo教育机构
建筑营引入绿色景观来柔化结构墙体的限制,让教学与自然时刻保持接触。中庭局部拆除了楼板,竹庭院延伸至地下的舞蹈教室、瑜伽教室和办公空间。
半透明的“室内村落”——保利WeDo教育机构
▽ 舞蹈教室 Dancing Classroom
半透明的“室内村落”——保利WeDo教育机构
半透明的“室内村落”——保利WeDo教育机构
▽平面图 Plan
半透明的“室内村落”——保利WeDo教育机构
项目信息:
项目名称:保利WeDo教育机构
设计团队:韩文强、王莹、李云涛
设计公司:建筑营设计工作室(www.archstudio.cn)
项目地址:北京市,朝阳区
项目类型:教育空间
建筑面积:1300平米
设计时间:2015.10—2016.01
施工时间:2015.12—2016.03
摄影师:夏至
半透明的“室内村落”——保利WeDo教育机构
韩文强
建筑营设计工作室(ARCH STUDIO)创始人&主持建筑师
韩文强,出生于辽宁大连,中央美院建筑学院硕士毕业后留校任教。于2010年创立建筑营设计工作室(ARCH STUDIO),结合教学研究展开多样的创作和实践。主要作品包括北京胡同茶舍、荣宝斋商店及文化艺术空间等。
半透明的“室内村落”——保利WeDo教育机构
2016.06期
日本专辑
点击封面
了解详情
本期的日本专辑我们选取了多样性的设计项目提供给大家,从咖啡厅到博物馆,从幼儿园到旗舰店,设计师们在有限的空间内施展自己无限的才华。
半透明的“室内村落”——保利WeDo教育机构
长按二维码,加关注
官方微信号:idc_1986
网址:www.idc.net.cn
微博:@idc室内设计与装修
(杂志购买咨询:025-85427006)
半透明的“室内村落”——保利WeDo教育机构
半透明的“室内村落”——保利WeDo教育机构
喜欢这样的设计吗?底部评论区,说说你的看法吧!
最新活动
往届回顾