行家说Display
LED新型显示产业智库
关注公众号
哪些企业真的在做照明CSP?
韩先森 · 2016-11-09
上期我们谈到了LED简化趋势以及最终的表现形式。那么这期,我们来谈谈目前世界上主流LED厂商的CSP发展状况和产品表现形式。
很多厂商都有自己家的个性,这种个性体现在其产品中。比如,五大家和韩系等LED厂商喜欢在其产品中加上齐纳二极管,而中国的比较简单了,直接去掉。再如,中国企业最新开发2835(不同于3528),迫于压力,包含飞利浦、三星等在内的也推出2835。又如以前的台湾琉明斯推出3014,曾经风靡一时。这些都是未成标准前各家个性企业的个性表现。这期我们谈及的CSP也有类似的现象,那么就一起来看看全球范围内的CSP状况。
一、下面就先看看五大家的CSP发展状况。
1.1 五大家,我们先看看日本地区的日亚化学(NICHIA)。从其官网,我们看到不同于SMD LED的新产品,其命名为:NCSWE17A和NCSWE21A。其中对应的参数如下表格:
哪些企业真的在做照明CSP?
我们再看看其外观正面照片和底部尺寸,是不是不同于其公司其它SMD LED产品啊?正面没有识别方向的折角,而且边缘已经看不到支架的厚度了。
哪些企业真的在做照明CSP?
哪些企业真的在做照明CSP?
关于日亚化学这两款产品是使用啥芯片?或者大家更关注是否使用倒装芯片。不着急,我们来看看最近新闻报道对于此产品的报道:
哪些企业真的在做照明CSP?
以上报道来自华强网,“直接安装芯片”,显然答案就是倒装芯片了。
1.2 接下来看看同是五大家之一的丰田合成,其实这家面向LED照明的东西相对较少。但是也推出了Flip-Chip封装的白光产品。不过他们也有个性,外封产品通过玻璃制品去封装,而不是我们常见的硅胶或者树脂类。请看如下他们的产品形式:
哪些企业真的在做照明CSP?
1.3 我们再来看看五大家之一的lumileds。这家公司产品也不同于日系的两家,我们看看其中一款产品:LUXEON Z ES。LUXEON Z ES是一款高功率的LED产品,尺寸为1.64mmx2.04mm,驱动电流700mA、电压3V。直接将倒装芯片封装ALN的支架上,再加上一个齐纳二极管。如下为其正面照片和尺寸示意图:
哪些企业真的在做照明CSP?
1.4 作为欧洲巨头欧司朗的CSP LED发展又如何呢?欧美风格也比较类似,他们推出了一款2.0 mm x 1.6 mm LED,65mA。看起来这么小的功率,估计也不会用倒装芯片了。不过不要紧,因为他们推出了超高功率集成封装–SOLERIQ S & P。我们一眼就可以看出肯定是通过CSP 进行SMT在基板上面的。
哪些企业真的在做照明CSP?
1.5 最后是另外一家LED的器件公司:Cree。这家的LED布局主要是还是高功率的朗伯型封装的LED。不过我也找到两款1.6 X 1.6 X 1.6 mm封装的XQ-B(300Ma MAX)和XQ-D(700mA MAX),比较鲜明的CREE特色,SIC热忱支架。不同于其它LED大家族。
哪些企业真的在做照明CSP?
对于五大家的LED的总结:要说严格扣字眼CSP的话,那么他们也算不上CSP。怎么说?因为不管是树脂+金属层+倒装芯片,还是ALN+倒装芯片+齐纳二极管,又或者是SIC+倒装芯片,其实都是简单的支架。为什么他们都相对于概念,更加复杂或者更多添加了其它辅助器件?其实原因也比较简单,大公司都是有个性,面向应用领域也略有不同,更重要的是他们专业领域也不同,所以LED的表现形式也独具一格。
举个例子:SIC是CREE的强项和专利覆盖领域;塑封是日亚的强项;丰田合成的玻璃封装应用的是高可靠性的领域;Osram和lumileds算是比较常见的表现形式了。另外一个保留支架的原因,现在的应用条件工艺不具备量产的可能性,需要通过支架进行过渡。或许等相关的设备和工艺稍微成熟了,的确LED存在的形式也会随之变化。
还有一个原因,LED芯片底部的光,需要一个反射器,要不很多光都得不到利用,转化为热量了。最后一个原因也比较明确,支架会带来高可靠性。例如增加齐纳二极管啊,或者保护脆弱的LED chip。
二、要说LED发展,那就不能不提一下韩国的LED企业了。
首尔,三星等企业在外延芯片、封装、应用领域推动了整个LED业界的进步。所以他们创新能力或者推陈出新的速度也是值得称赞的。虽然核心专利不及五大家,但是都有相互授权,并且品牌影响力也比较强大。
好吧,言归正转,那我们来看看韩国企业在CSP上面的布局:
2.1 首先,我们来看看首尔半导体。这个企业创新速度是最快的,CSP也是率先推出来,并应用于背光、通用照明和车用照明的。下面看看他们的CSP产品WICOP (Lighting): Z8Y11 Z8Y15 Z8Y19 Z8Y22(封装尺寸和功率不一样)。他们这个就是按照CSP的定义进行封装的。
下面用Z8Y15举例说明,最大功率4.7W@3V,芯片上面直接涂布荧光粉,其尺寸和封装如下图:
哪些企业真的在做照明CSP?
哪些企业真的在做照明CSP?
2.2 我们再来看看另外一个著名的公司:三星。三星推出了名字就是CSP系列的产品:LM101A(1.18*1.18mm)、 LH141A(1.46*1.46mm)、 LM131A(1.42*1.42mm)、 LM102A(1.34*1.34mm)。
下面我们用LM101A和 LM131A举例。为啥三星要用这两个型号举例呢?因为他们的表现形式虽然都是CSP,但是设计更加先进。LM131A在荧光层背面添加了TIO2反射涂层。
哪些企业真的在做照明CSP?
哪些企业真的在做照明CSP?
韩系LED小结:他们才是典型的CSP创造者。
三、那我们再来看看台湾LED和大陆LED的对于CSP的布局吧。
曾几何时,台湾企业推动LED的快速发展。现在大陆很多LED企业,也还有很多是台资背景。不过大陆已经缩小了LED封装方面的差异,并且新产品速度也快。因为企业太多了,我们找两个典型例子来看看他们CSP方面的成就。
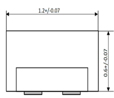
3.1 我们先看看台资企业里面的隆达,封装尺寸13*13mm(65Ma 3V)16*16mm(150mA 6V)。看起来还是有支架,或许保证了量产的可能性以及可靠性。相对于韩国企业,隆达这个封装算是比较落后了,不过他们好歹也号称CSP。
哪些企业真的在做照明CSP?
3.2 看完隆达,我们再看另外一家大陆LED企业:深圳某某半导体公司。为何要匿名呢?为了避免有帮人打广告之嫌。通过这家公司的资料可以看出,主要是倒装芯片的产品制备。包含CSP、倒装COB等等。下面我们看看他们的产品如何:M120120,5面发光,175Ma@3V。从图纸上面就可以看出是典型的CSP封装。
哪些企业真的在做照明CSP?
哪些企业真的在做照明CSP?
中国半导体CSP发展小结:可能有人认为怎么介绍台系和陆系的LED篇幅少,内容简单啊?其实很简单,因为他们提供的资料非常有限,很多都不公开。反正别人有的我也有。我印象最深的还是台积固态照明的CSP,很早就推出来了,但是公司卖掉了。再就是亿光和隆达也在不同的领域里面推出CSP,可惜我们获取的资料有限,所以就不能深入调查了。
好在也有新面孔出来了,就是上面提及的这家深圳一家公司。避开现在价格泥涝的SMD,另辟蹊径去发展和推广CSP。至于其它LED规模稍大的大陆企业,他们最先将CSP用于手机闪光灯和电视背光中,照明应用方案也在慢慢推出。也就是我刚才说的:CSP我也有啊,你要啥功率和尺寸的。
刚刚我们分析了五大家、韩系、中国企业的在CSP上的布局和产品推广。其实不难发现,五大家有自己的产品发展方向和定位,可能会兼顾专利,可靠性,量产型以及应用特性,所以会有自己的鲜明特色。但是他们的简化之路也是一步一步的朝前走的。韩国半导体企业是CSP中坚力量,在各个领域里面都推出了CSP产品,是CSP的潮流的引导者。中国LED企业(大陆和台湾)也在悄无声息的发展CSP事业。虽然很低调,但是他们未来的力量可是不容小觑的,毕竟全世界80%的LED产品都出自中国。另外,LED是一个零和交易市场,发展CSP就会吞噬掉支架类LED的份额,所以边走边看,会有最佳切入点。
*注:本文由行家说APP与作家专栏作者韩先森联合出品。谢绝任何未经许可的转载。授权联系微信号:hangjia199
最新活动
往届回顾