行家说Display
LED新型显示产业智库
关注公众号
夯土房是如何击败全球540个专业酒店封冠的?
阿拉丁照明网 · 2016-08-01
如果我说,下面这个夯土房击败了全球540个专业酒店,夺得了美国首屈一指的酒店设计杂志《Hospitality Design Magazine》颁布的2016最佳经济酒店奖,你相不相信?
夯土房是如何击败全球540个专业酒店封冠的?
既不高端、大气、上档次,也没有其他民宿强调的情调,外表看上去就是稀松平常的农民房子。
夯土房是如何击败全球540个专业酒店封冠的?
而它最大的竞争对手——威尼斯万豪酒店的画风是这样的
旅馆|旧村活化中的植入策略
An Implanting Strategy on the Revitalization of Historical Village
走进这个夯土房
光与影,新与旧
强烈的对比和张力
是否已让你大大惊艳了一把?
别急,这个故事才刚开头
夯土房是如何击败全球540个专业酒店封冠的?
夯土房是如何击败全球540个专业酒店封冠的?
夯土房是如何击败全球540个专业酒店封冠的?
这个项目名叫“爷爷家青年旅社”,位于浙江省丽水市松阳县四都乡平田村,2014年何崴接手的时候还是一座普通夯土民居。
夯土房是如何击败全球540个专业酒店封冠的?
▲设计师何葳
平田村是一个很美的村子,有着大量保持传统风貌的古建筑。特别是在下雨的时候,宛如仙境,所以又得名云上平田。
夯土房是如何击败全球540个专业酒店封冠的?
▲平田村
然而,像中国很多村落一样
虽然有美好的环境,但是已经空心化了。
随着年轻人带着儿女奔抵城市务工
这些“空心村”只剩下老人。
夯土房是如何击败全球540个专业酒店封冠的?
夯土房是如何击败全球540个专业酒店封冠的?
“空心村”萧条又孤寂,
何葳想通过好的设计,
把年轻人重新吸引回来,
让村庄活过来,
而这也是中国村庄最急需解决的问题。
夯土房是如何击败全球540个专业酒店封冠的?
▲爷爷家外观原貌
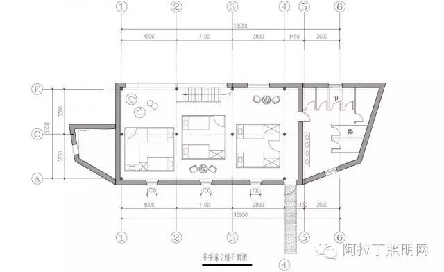
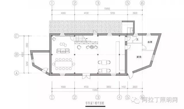
何葳接下这个项目是受江斌龙(小江)的委托。原建筑是一座普通夯土民居,二层,土木结构,共270平米左右,是小江爷爷的旧住所。
夯土房是如何击败全球540个专业酒店封冠的?
夯土房是如何击败全球540个专业酒店封冠的?
▲酒店剖析图
小江原想改造成度假村,何葳注意到平田村吸引了一些学生来写生,他们想到为这些年轻人设计一个住所。于是,改造开始了。
夯土房是如何击败全球540个专业酒店封冠的?
夯土房是如何击败全球540个专业酒店封冠的?
▲爷爷家二层原貌
爷爷家的空间,一层为三个独立的跨间,二层则呈现为一个通透的“大空间”。
何葳不想按照常规的作法,修旧如旧,或者作新中式。他们采用了更有张力的作法:使用新的、对比性强的材料和构造体系与旧有的土木结构进行对话。
外形保留土墙,只是修缮,换掉烂掉的木质框架。
夯土房是如何击败全球540个专业酒店封冠的?
夯土房是如何击败全球540个专业酒店封冠的?
为了解决老房子采光问题,
在屋顶上开了若干个天窗,
让光进来。
夯土房是如何击败全球540个专业酒店封冠的?
夯土房是如何击败全球540个专业酒店封冠的?
夯土房是如何击败全球540个专业酒店封冠的?
一楼,原有建筑室内的隔板被拆除,并增设吧台和休息用桌椅、书架等家具,一个轻松、富于活力的青年旅社交流空间就这样产生了。
夯土房是如何击败全球540个专业酒店封冠的?
夯土房是如何击败全球540个专业酒店封冠的?
夯土房是如何击败全球540个专业酒店封冠的?
二楼,为了保留原空间的“大空间”特质,常规由固定墙体分隔的模式被否定了;一组“房中房”的空间元素被植入原有土房子中。
夯土房是如何击败全球540个专业酒店封冠的?
房中房底板下安装有万向轮,由自己的需求自由组建。爷爷家青旅可以说是一个“互动”建筑。
夯土房是如何击败全球540个专业酒店封冠的?
夯土房是如何击败全球540个专业酒店封冠的?
房中房的实际功能是青旅的居住单元,每个居住单元可容纳4-6人。
夯土房是如何击败全球540个专业酒店封冠的?
夯土房是如何击败全球540个专业酒店封冠的?
为了营造更具戏剧性的效果,房中房的表皮上开了一系列大小不一的洞口。年轻人们可以通过洞口聊天哦。
夯土房是如何击败全球540个专业酒店封冠的?
夯土房是如何击败全球540个专业酒店封冠的?
光通过半透明材料的反射、折射照亮整个空间,藏在“房中房”中的有色灯管开启,又把空间营造成一个富于激情的场所。
夯土房是如何击败全球540个专业酒店封冠的?
夯土房是如何击败全球540个专业酒店封冠的?
这三小房子都是简单的结构可以多次拆卸和组装。将来如果爷爷不想经营了,他只要把这个房中房拆除,就可以恢复到原来的结构。
夯土房是如何击败全球540个专业酒店封冠的?
在室外看,新的爷爷家还保持着它的原貌,和周边环境保持一贯的良好关系,在室内则是另一番气息,新旧的对比赋予爷爷家新的气场,历史和未来在这里交汇。
夯土房是如何击败全球540个专业酒店封冠的?
夯土房是如何击败全球540个专业酒店封冠的?
▲剖透视
设计只是开始,而不是结束。
何葳希望青年旅社的功能给予这个老房子一颗年轻的心脏,让它在沉寂多时以后重新苏醒,再活一次。
所以何葳做了一些小商品的开发,例如端午茶、家具、纪念品等,来支撑青旅的经营。
夯土房是如何击败全球540个专业酒店封冠的?
夯土房是如何击败全球540个专业酒店封冠的?
拿下纽约HD Awards的大奖时,这个土房子,也同时摘下了意大利A’ Design Award银奖。何崴心里是欣喜的,他没想到,中国农村问题会得到这样的关注。
这栋房子,其实是何葳和农民一起商量出来的,设计师是他,也是他们。
夯土房是如何击败全球540个专业酒店封冠的?
夯土房是如何击败全球540个专业酒店封冠的?
▲设计手稿
“哪怕他是一个不懂得建筑的农民,你也要和他平视,因为虽然他不懂得设计但是他懂得生活,他知道他要什么样的生活,所以你必须要尊重他。”——何葳
得奖后,许多人来到这儿,想了解这个土房子的获奖秘诀,村庄又恢复了生机。
夯土房是如何击败全球540个专业酒店封冠的?
夯土房是如何击败全球540个专业酒店封冠的?
夯土房是如何击败全球540个专业酒店封冠的?
何葳通过他们的设计真的赋予了这个老房子一颗年轻的心脏,通过这颗心脏也激活了整个村庄,让它重新地活了过来!
夯土房是如何击败全球540个专业酒店封冠的?
什么叫好的建筑?好的建筑未必要惊世骇俗,流传百世,但是一定要尊重使用者。
—— 何葳如是说
来源 | 新浪家居设计师俱乐部
登载此文出于传递更多信息,只作分享交流之用,并不意味着赞同其观点或证实其描述。
相关标签
最新活动
往届回顾