行家说Display
LED新型显示产业智库
关注公众号
为孩子改建的住宅,实用的同时也要融入童心!
idc室内设计与装修 · 2016-06-11
为孩子改建的住宅,实用的同时也要融入童心!
这是一对夫妇为了他们的孩子改建的一栋小公寓。他们希望设计以孩子为出发点,因此委托建筑师为他们改造一个充满奇思妙想,孩子喜欢,大人也方便的住宅。
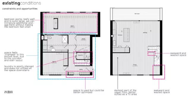
▽ 改造前平面图
为孩子改建的住宅,实用的同时也要融入童心!
为孩子改建的住宅,实用的同时也要融入童心!
▽ 改造后平面图
为孩子改建的住宅,实用的同时也要融入童心!
建筑师首先将黑暗密闭的楼梯裁掉,然后用白色可以透光的穿孔钢板搭建了一个能让光线渗透,充满开放感的楼梯,同时这个新楼梯也让原来紧靠楼梯没有窗户的工作室从黑暗中解脱出来,充满光明。
为孩子改建的住宅,实用的同时也要融入童心!
为孩子改建的住宅,实用的同时也要融入童心!
为孩子改建的住宅,实用的同时也要融入童心!
为孩子改建的住宅,实用的同时也要融入童心!
随着孩子到来的还有很多玩具和杂物,可不能让这些东西沾满了宝贵的空间,建筑师将地板抬高做成可以储物的地板,让大人从杂物的噩梦中解脱出来。此外具有一定深度的地板储物格还能成为孩子的游戏藏身处。
为孩子改建的住宅,实用的同时也要融入童心!
为孩子改建的住宅,实用的同时也要融入童心!
为孩子改建的住宅,实用的同时也要融入童心!
为了保持孩子一直在大人的视线中,建筑师将墙面转换成了大型的推拉门墙面,这样子房屋空间实现连贯,连通性加强。孩子在房间中玩耍也不会移除大人的视野。
为孩子改建的住宅,实用的同时也要融入童心!
建筑师还在这个二层小屋中设计了一个绞车,方便运输孩子的挖局,尿布,杂物,垃圾等等物品。他们坚信这个小小的装置可以让生活方便许多。
为孩子改建的住宅,实用的同时也要融入童心!
为孩子改建的住宅,实用的同时也要融入童心!
为孩子改建的住宅,实用的同时也要融入童心!
明亮的楼梯间与办工桌还有衣柜联系,充满光明的楼梯间不仅支持孩子们们玩耍和探索,还支持他们坐在楼梯上同大人聊天。同时这个空间和卫生间,卧室,洗衣间,客厅,餐厅,厨房都直接联系,前往非常方便。
为孩子改建的住宅,实用的同时也要融入童心!
为孩子改建的住宅,实用的同时也要融入童心!
为孩子改建的住宅,实用的同时也要融入童心!
为孩子改建的住宅,实用的同时也要融入童心!
建筑师还将原有的巨大单卫生间改建成了两个合理宽敞的卫生间,并且以红色和蓝色加以区分以达到不同的视觉效果!
为孩子改建的住宅,实用的同时也要融入童心!
通过设计,可以让空间更简化,更有价值,也变得更大。只要勇于挑战,万事皆不是没可能。
为孩子改建的住宅,实用的同时也要融入童心!
2016.06期
日本专辑
点击封面
了解详情
本期的日本专辑我们选取了多样性的设计项目提供给大家,从咖啡厅到博物馆,从幼儿园到旗舰店,设计师们在有限的空间内施展自己无限的才华。
官方微信号:idc_1986
网址:www.idc.net.cn
微博:@idc室内设计与装修
(杂志购买咨询:025-85427006)
最新活动
往届回顾